Helsingin varastotilat
Helsinki tarjoaa laajan valikoiman varastotiloja eri kokoisille yrityksille ja tarpeisiin. Olipa haussa pienvarasto, logistiikkakeskus tai tuotantotila, pääkaupunkiseudulta löydät sopivia vaihtoehtoja kaikenkokoisille toimijoille.
Varastotiloja on tarjolla sekä keskeisiltä alueilta, kuten Pitäjänmäestä ja Herttoniemestä, että Kehä I–III -alueiden läheisyydestä, joissa liikenneyhteydet ja saavutettavuus ovat erinomaiset. Helsingin sijainti tekee siitä ihanteellisen paikan jakelu- ja varastointitoiminnoille niin kotimaassa kuin kansainvälisestikin.
Tutustu vapaisiin varastotiloihin Helsingissä ja ota yhteyttä – autamme sinua löytämään yrityksellesi juuri sopivan tilaratkaisun!
Varasto Helsinki
Tutustu suosituimpiin varasto-kohteisiin:
 
                                
                             
                                
                             
                                
                             
                                
                            Atomitie 1
Atomitie 1, Helsinki109.5 m² varasto
 
                                
                             
                                
                             
                                
                             
                                
                             
                                
                             
                                
                             
                                
                             
                                
                            Valokaari 8
Valokaari 8, Helsinki1568 m² varasto, tuotanto
 
                                
                             
                                
                             
                                
                             
                                
                            Atomitie 1
Atomitie 1, Helsinki370 m² varasto
 
                                
                             
                                
                             
                                
                             
                                
                             
                                
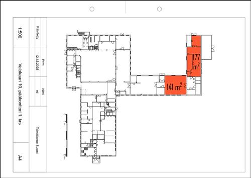
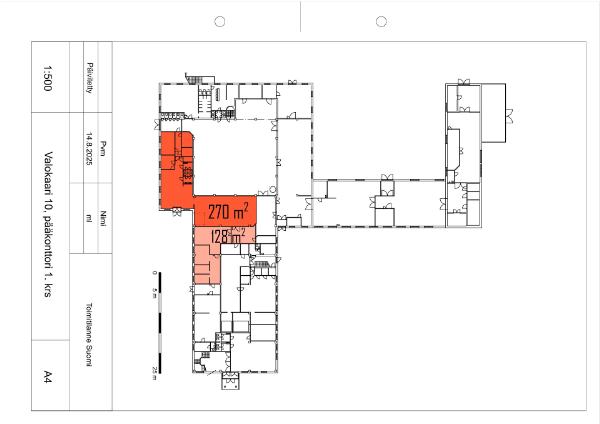
                            Valokaari 10
Valokaari 10, Helsinki177 m² varasto, tuotanto
 
                                
                             
                                
                             
                                
                             
                                
                             
                                
                             
                                
                             
                                
                             
                                
                            Seilorinkatu 1
Seilorinkatu 1, Helsinki2783 m² varasto
 
                                
                             
                                
                             
                                
                            Helsingin Kutomotie 6
Kutomotie 6 B, Helsinki261 m² toimisto, varasto
 
                                
                             
                                
                             
                                
                            Helsingin Kutomotie 6
Kutomotie 6 B, Helsinki303 m² varasto
 
                                
                             
                                
                             
                                
                             
                                
                             
                                
                             
                                
                             
                                
                             
                                
                            Itälahdenkatu 23
Itälahdenkatu 23, Helsinki207 m² toimisto, varasto
 
                                
                             
                                
                             
                                
                             
                                
                             
                                
                             
                                
                             
                                
                             
                                
                             
                                
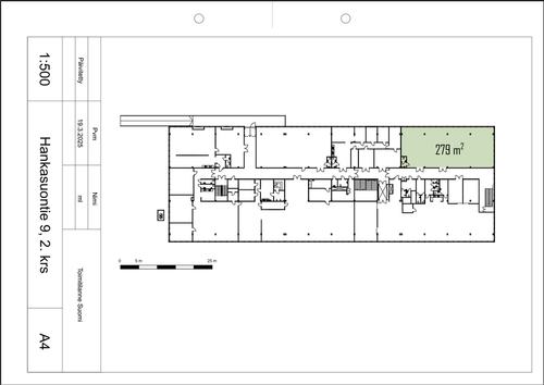
                            Hankasuontie 9
Hankasuontie 9, Helsinki279 m² tuotanto, varasto
 
                                
                             
                                
                             
                                
                             
                                
                             
                                
                             
                                
                            Mekaanikonkatu 5
Mekaanikonkatu 5, Helsinki610 m² varasto, liiketila
 
                                
                             
                                
                             
                                
                            Helsingin Kutomotie 6
Kutomotie 6 B, Helsinki591 m² varasto
 
                                
                             
                                
                            Helsingin Konepajankuja 6
Konepajankuja 6, Helsinki710 m² varasto
 
                                
                             
                                
                             
                                
                             
                                
                            Itälahdenkatu 23
Itälahdenkatu 23, Helsinki110 m² varasto
 
                                
                             
                                
                            Vanha Helsingintie 18
Vanha Helsingintie 18, Helsinki80 m² varasto
 
                                
                             
                                
                             
                                
                             
                                
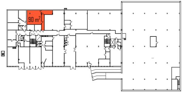
                            Hankasuontie 9
Hankasuontie 9, Helsinki90 m² varasto
 
                                
                             
                                
                             
                                
                             
                                
                             
                                
                             
                                
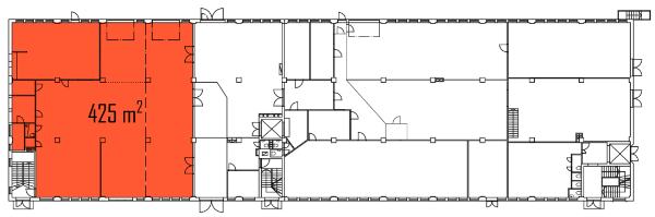
                            Valokaari 10
Valokaari 10, Helsinki82 m² varasto
 
                                
                             
                                
                             
                                
                             
                                
                             
                                
                             
                                
                             
                                
                             
                                
                             
                                
                             
                                
                            Valokaari 10
Valokaari 10, Helsinki398 m² toimisto, varasto
 
                                
                             
                                
                            Ruoholahden Roihu
Porkkalankatu 3, Helsinki326 m² liiketila, varasto

 
				
				
				 
                                
                             
                                
                             
                                
                             
                                
                             
                                
                             
                                
                             
                                
                             
                                
                            