Vuokrataan - Yrittäjätalo
Työpajankatu 10, 00580 Helsinki, Kalasatama
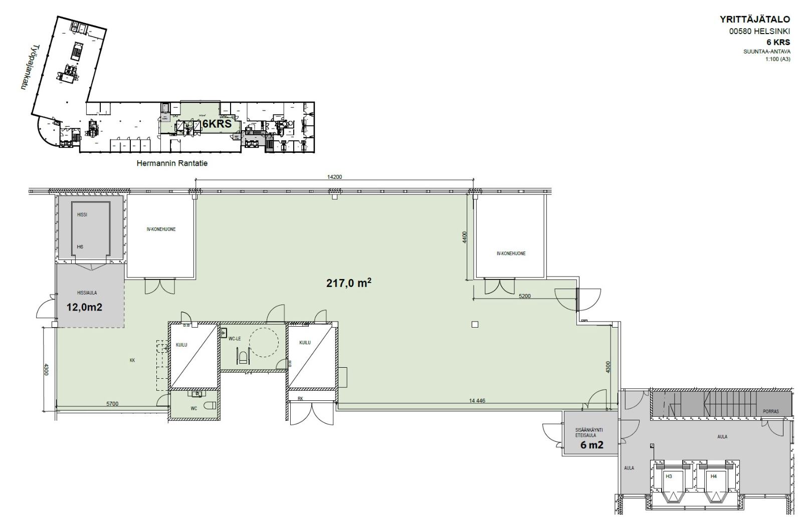
Vuokrataan kuudennen kerroksen 224 m² toimitila Kalasatamasta. Tämä toimitila koostuu avotilasta, keittiöstä sekä wc- tiloista. Tilassa on uusittu valaistus ja wc:t. Keittiö, lattiamateriaalit sekä mahdolliset huoneet rakennetaan asiakkaan toiveiden mukaan! Tilaan tulee tavarahissi ja toimii varastona nykyisessä kunnossaan.
Helsingin Yrittäjätalo sijaitsee hyvien kulkuyhteyksien varrella keskustan läheisyydessä, Kalasataman metroasemaa vastapäätä. Toimitilat rakennetaan laadukkailla ratkaisuilla ja asiakaskohtaiset tilatarpeet huomioiden. Tiloissa on uniikkeja yksityiskohtia kuten esimerkiksi kahden kerroksen korkuinen näyttävä aulatila sekä kaareva lasikulma.
Kattavat ravintolapalvelut ja neuvottelutilat löytyvät läheisestä Rantatie Business Parkista sekä Lindström Talosta ja Kalasataman Kummelista.
Kysy lisätietoja tai sovitaan käynti kohteelle jo tänään!
Helsingin Yrittäjätalo sijaitsee hyvien kulkuyhteyksien varrella keskustan läheisyydessä, Kalasataman metroasemaa vastapäätä. Toimitilat rakennetaan laadukkailla ratkaisuilla ja asiakaskohtaiset tilatarpeet huomioiden. Tiloissa on uniikkeja yksityiskohtia kuten esimerkiksi kahden kerroksen korkuinen näyttävä aulatila sekä kaareva lasikulma.
Kattavat ravintolapalvelut ja neuvottelutilat löytyvät läheisestä Rantatie Business Parkista sekä Lindström Talosta ja Kalasataman Kummelista.
Kysy lisätietoja tai sovitaan käynti kohteelle jo tänään!
Kohteen tiedot
Pinta-ala:
224 m²
Hinta-arvio:
19 - 23 €/m²
(4 256 - 5 152 €/kk)
Kerros:
6
Tilan ominaisuudet:
- Heti vapaa
- Hissi
- Keittiö, oma
- Monitilatoimisto
- Tila muokattavissa
- Tila remontoidaan
- WC, oma
Kiinteistön palvelut:
- Lastauslaituri
- Ravintola
- Tavarahissi
Yhteyshenkilö:
Mika Savikko
mika.savikko@hausala.fi
050 472 7077
mika.savikko@hausala.fi
050 472 7077
Mikko Ranta
mikko.ranta@hausala.fi
050 360 6500
mikko.ranta@hausala.fi
050 360 6500
