Vuokrataan - Hankasuontie 9
Hankasuontie 9, 00390 Helsinki, Konala
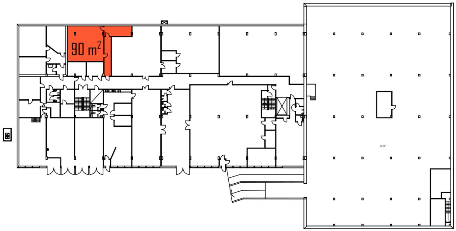
Vuokrataan Helsingin Konalasta kellari kerroksen 90 m² varastotila. Tila ei sovellu bänditilaksi!
Kysy rohkeasti lisätietoja ja sovitaan käynti kohteella jo tänään!
Kysy rohkeasti lisätietoja ja sovitaan käynti kohteella jo tänään!
Kohteen tiedot
Pinta-ala:
90 m²
Kerros:
Kellari
Yhteyshenkilö:

Mikko Ranta
mikko.ranta@hausala.fi
050 360 6500
mikko.ranta@hausala.fi
050 360 6500

Mika Savikko
mika.savikko@hausala.fi
050 472 7077
mika.savikko@hausala.fi
050 472 7077