Vuokrataan - Valokaari 10
Valokaari 10, 00750 Helsinki, Suutarila
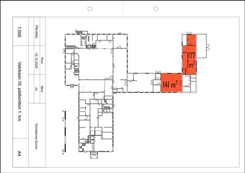
Vuokrataan Helsingin Suutarilasta katutason 318 m² varastotilat. Varastotila koostuu kahdesta tilasta, jotka voidaan vuokrata yhdessä tai erikseen.
Selkeä varastotila 141 m², jonne yhteiskäytössä oleva lastausovi (leveys 2,63 m, korkeus 2,42 m) sisäpihan puolella. Varastotilaan 177 m² kuljetaan joko ulkoa oman parioven kautta tai 141 m²:n tilan kautta (pariovet).
Myös viereinen aidattu ulkovarastotila 84 m² vapautuu sopimuksen mukaan.
Kysy rohkeasti lisätietoja ja sovitaan käynti kohteella!
Selkeä varastotila 141 m², jonne yhteiskäytössä oleva lastausovi (leveys 2,63 m, korkeus 2,42 m) sisäpihan puolella. Varastotilaan 177 m² kuljetaan joko ulkoa oman parioven kautta tai 141 m²:n tilan kautta (pariovet).
Myös viereinen aidattu ulkovarastotila 84 m² vapautuu sopimuksen mukaan.
Kysy rohkeasti lisätietoja ja sovitaan käynti kohteella!
Kohteen tiedot
Pinta-ala:
141 m² - 318 m²
Hinta-arvio:
9 - 13 €/m²
(1 269 - 4 134 €/kk)
Kerros:
Katutaso
Tilan ominaisuudet:
- Heti vapaa
- Jaettavissa
- Katutasossa
- Koneellinen ilmanvaihto
- Oma sisäänkäynti
- Tila muokattavissa
- Vesipiste
- Voimavirta
Kiinteistön palvelut:
- Asiakaspysäköinti
Yhteyshenkilö:
Matti Pöyhiä
matti.poyhia@hausala.fi
040 722 6650
matti.poyhia@hausala.fi
040 722 6650
Mika Savikko
mika.savikko@hausala.fi
050 472 7077
mika.savikko@hausala.fi
050 472 7077
