Varastotilat Vantaa
Vantaa tarjoaa monipuolisia ja moderneja varastotiloja eri tarpeisiin – olipa kyseessä logistiikka, verkkokauppa, tuotanto tai varastointi. Erinomainen sijainti pääkaupunkiseudun ytimessä, lentokentän ja pääväylien läheisyydessä, takaa sujuvat kuljetukset ja nopeat yhteydet koko Suomeen sekä kansainvälisesti.
Vantaan varastotilat soveltuvat niin pienyrityksille kuin suurille toimijoille. Tarjolla on joustavia tilaratkaisuja, jotka voidaan räätälöidä asiakkaan tarpeiden mukaan. Monissa kohteissa on huomioitu nykyaikaiset vaatimukset kuten korkea turvallisuustaso, energiatehokkuus ja mahdollisuus automatisoituun logistiikkaan.
Olitpa etsimässä tilaa lyhytaikaiseen käyttöön tai pitkäaikaiseen varastointiin, Vantaalta löydät toimivan ja kustannustehokkaan ratkaisun.
Selaa tarjontaamme ja löydä juuri yrityksesi tarpeisiin sopivat varastotilat!
Varasto Vantaa
Tutustu suosituimpiin varasto-kohteisiin:
Tammiston Kauppatie 27
Tammiston Kauppatie 27, Vantaa1141 m² - 3708 m² varasto, muu
Juhanilantie 4
Juhanilantie 4, Vantaa600 m² varasto
Linjatie 2
Linjatie 2, Vantaa2538 m² - 5000 m² varasto
Vantaankulma
Juurakkotie 4, Vantaa9214 m² varasto
Tikkurila Twins – Maalitori
Vernissakatu 3, Vantaa151 m² varasto
Vanha Porvoontie 231
Vanha Porvoontie 231, Vantaa325 m² varasto
Tiilenlyöjänkuja 9
Tiilenlyöjänkuja 9, Vantaa1948 m² varasto
Vantaan Silvastintie 1
Silvastintie 1, Vantaa715.5 m² tuotanto, varasto
Hakkilankaari 1
Hakkilankaari 1, Vantaa1650 m² varasto
Pavintie 2
Pavintie 2, Vantaa583 m² toimisto, varasto
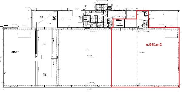
Vantaan Vanhan Porvoontien Jatke
Vanha Porvoontie 256a, Vantaa960 m² tuotanto, työtila, varasto
Varistontaso
Martinkyläntie 54, Vantaa102 m² varasto
Airbase Aviapolis
Äyrikuja 3, Vantaa3340 m² varasto, tuotanto
Honkanummentie 13
Honkanummentie 13, Vantaa2000 m² - 10494 m² varasto, toimisto
Sarkatie 2
Sarkatie 2, Vantaa1050 m² varasto, toimisto
Tullimiehentie 10
Tullimiehentie 10, Vantaa2372 m² varasto, tuotanto, toimisto
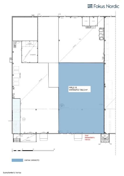
Vantaan Suokalliontie 9
Suokalliontie 9, Vantaa726.5 m² varasto
Hakkilankaari 1
Hakkilankaari 1, Vantaa1645.5 m² varasto
KOy STC Pressi
Uutistie 7, Vantaa1984 m² varasto, liiketila
