Vuokrataan - Tampereen Lumpeenkatu 1
Lumpeenkatu 1, 33900 Tampere, Härmälä
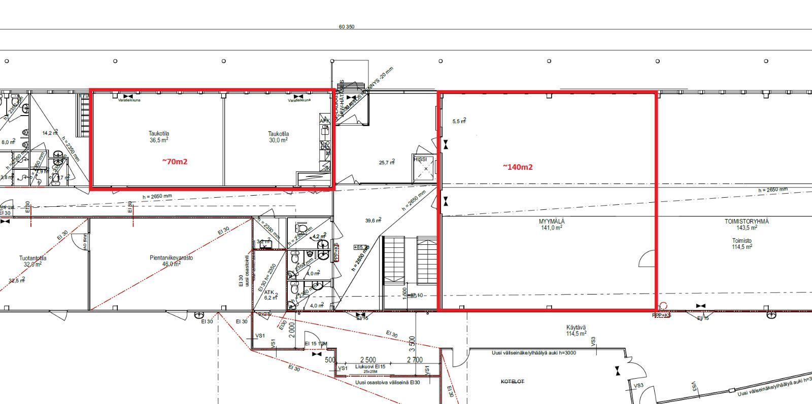
Vuokrataan ensimmäisen kerroksen 210 m² toimisto- /työtila kokonaisuus, joka koostuu 70 m² ja 140 m² tiloista. Kohde todella hyvällä sijainnilla Sarankulmasta. Tilat ovat jäähdytetty, joka takaa miellyttävän työskentelyn myös kesäkuumalla. Pysäköintitilaa on runsaasti niin työntekijöille kuin asiakkaille. Tämä toimistotila kokonaisuus on heti vapaa ja sitä on mahdollista muokata asiakkaan tarpeiden mukaisesti. Tänne on helppo tulla niin omalla autolla kuin Tampereen joukkoliikennettä hyödyntäen. Pirkkalan palvelut ovat välittömässä läheisyydessä.
Olisiko tässä yrityksellenne edustava ja toimiva toimistotila huippusijainnilla?
Kysy rohkeasti lisätietoja ja varaa esittelyaikasi jo tänään!
Olisiko tässä yrityksellenne edustava ja toimiva toimistotila huippusijainnilla?
Kysy rohkeasti lisätietoja ja varaa esittelyaikasi jo tänään!
Kohteen tiedot
Pinta-ala:
210 m²
Rakennusvuosi:
2008
Kerros:
1
Jäähdytetty:
Kyllä
Tilan ominaisuudet:
- Huonetoimisto
- Jäähdytetty
- Keittiö, oma
- Koneellinen ilmanvaihto
- Muuttovalmis
- Näkyvällä paikalla
- Tila muokattavissa
- WC, oma
Kiinteistön palvelut:
- Kiinteistöpalvelut
- Lastauslaituri
- Piha
- Siivouspalvelu
- Suihkutilat
- Turvapalvelut
Yhteyshenkilö:
Mika Savikko
mika.savikko@hausala.fi
050 472 7077
mika.savikko@hausala.fi
050 472 7077
Tero Ala-Hannula
tero.ala-hannula@hausala.fi
040 508 1351
tero.ala-hannula@hausala.fi
040 508 1351
