Vuokrataan - Helsingin Lönnrotinkatu 11
Lönnrotinkatu 11, 00120 Helsinki, Kamppi
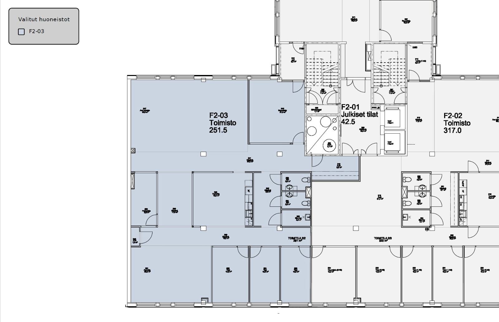
Vuokrataan toisen kerroksen siisti 251 m² toimistotila erinomaisella sijainnilla Lönnrotinkadulta. Tämä tila koostuu avotilasta sekä erillisistä toimistohuoneista. Tilassa myös oma keittiö ja wc-tilat.
Kiinteistön sisätilat sekä talotekniikka on saneerattu v. 2016. Kiinteistön sijainti on hyvä; Kampin Metroasemalle n. 600 m ja rautatieasemallekin ainoastaan n. 700 m.
Pyörällä töihin kulkeville löytyy pukeutumis- ja pesutilat sekä pyörävarasto. Vuokrattavia autopaikkoja löytyy kiinteistön kellarikerroksesta ja piha- alueelta. Kohteen lähellä on myös runsaasti pysäköintilaitoksia. Kiinteistössä sähköautojen latauspiste. Kiinteistön katutasossa toimii ravintola Lönkka Bull & Bottle, josta löytyy lounas- sekä illallistarjoilu. Kiinteistöllä on LEED-Platina sertifikaatti.
Kysy lisätietoja tai sovitaan käynti kohteelle!
Kiinteistön sisätilat sekä talotekniikka on saneerattu v. 2016. Kiinteistön sijainti on hyvä; Kampin Metroasemalle n. 600 m ja rautatieasemallekin ainoastaan n. 700 m.
Pyörällä töihin kulkeville löytyy pukeutumis- ja pesutilat sekä pyörävarasto. Vuokrattavia autopaikkoja löytyy kiinteistön kellarikerroksesta ja piha- alueelta. Kohteen lähellä on myös runsaasti pysäköintilaitoksia. Kiinteistössä sähköautojen latauspiste. Kiinteistön katutasossa toimii ravintola Lönkka Bull & Bottle, josta löytyy lounas- sekä illallistarjoilu. Kiinteistöllä on LEED-Platina sertifikaatti.
Kysy lisätietoja tai sovitaan käynti kohteelle!
Kohteen tiedot
Ympäristösertifikaatti:
LEED
Pinta-ala:
251 m²
Hinta-arvio:
24 - 28 €/m²
(6 024 - 7 028 €/kk)
Rakennusvuosi:
1972
Kerros:
2
Jäähdytetty:
Kyllä
Tilan ominaisuudet:
- Avotoimisto
- Huonetoimisto
- Jäähdytetty
- Keittiö, oma
- Tila muokattavissa
- WC, oma
Kiinteistön palvelut:
- Pyöräparkki
- Ravintola
- Suihkutilat
Yhteyshenkilö:
Mikko Ranta
mikko.ranta@hausala.fi
050 360 6500
mikko.ranta@hausala.fi
050 360 6500
Mika Savikko
mika.savikko@hausala.fi
050 472 7077
mika.savikko@hausala.fi
050 472 7077
