Vuokrataan - Koskitammi
Kelloportinkatu 1, 33100 Tampere, Tampella
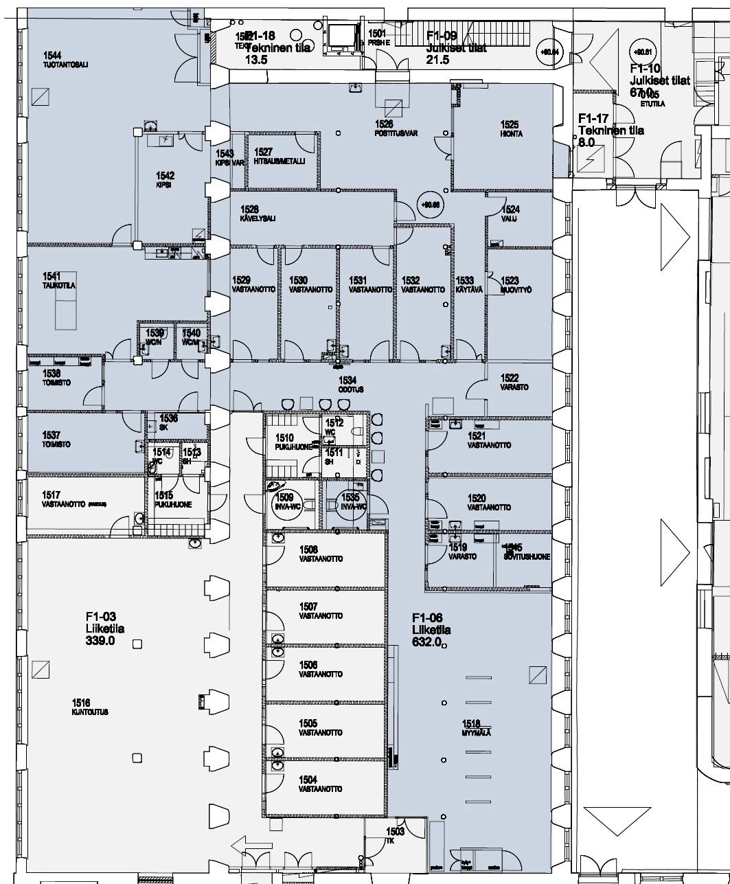
Vuokrataan siisti 1. kerroksen 632 m² toimitila Tampellasta. Soveltuu myös terveydenhuoltoalan toimijalle. Tilassa toiminut terveysalalla toiminut yritys, valmiina mm. vesipisteellisiä vastaanottohuoneita.Tämä tila on vapaa 01.02.2027.
Tampellan vanha pellavatehdas sijaitsee ydinkeskustassa, Tammerkosken rannalla Kaikki tilat on täysin uusittu vuonna 2017. Kiinteistöllä on oma pysäköintihalli ja pihaparkkipaikkoja. Paljon pysäköintitilaa tarvitseville yrityksille on vuokrattavissa paikkoja myös lähialueen pysäköintilaitoksista. Korkeatasoisen kohteen ominaisuuksia ovat mm. korkea huonekorkeus ja isot ikkunat. Kiinteistössä toimii ravintola Tampella sekä vuokralaisille tarjolla hyvät pukuhuonetilat.
Kohteeseen on hyvät julkiset yhteydet; Raitiovaunupysäkille n. 700 m ja lähin bussipysäkki sijaitsee n. 180 m päässä. Kiinteistöllä on sertifikaatti LEED CSv3 Gold.
Kysy lisätietoja tai sovitaan käynti kohteelle jo tänään!
Tampellan vanha pellavatehdas sijaitsee ydinkeskustassa, Tammerkosken rannalla Kaikki tilat on täysin uusittu vuonna 2017. Kiinteistöllä on oma pysäköintihalli ja pihaparkkipaikkoja. Paljon pysäköintitilaa tarvitseville yrityksille on vuokrattavissa paikkoja myös lähialueen pysäköintilaitoksista. Korkeatasoisen kohteen ominaisuuksia ovat mm. korkea huonekorkeus ja isot ikkunat. Kiinteistössä toimii ravintola Tampella sekä vuokralaisille tarjolla hyvät pukuhuonetilat.
Kohteeseen on hyvät julkiset yhteydet; Raitiovaunupysäkille n. 700 m ja lähin bussipysäkki sijaitsee n. 180 m päässä. Kiinteistöllä on sertifikaatti LEED CSv3 Gold.
Kysy lisätietoja tai sovitaan käynti kohteelle jo tänään!
Kohteen tiedot
Ympäristösertifikaatti:
LEED
Pinta-ala:
632 m²
Hinta-arvio:
24 - 28 €/m²
(15 168 - 17 696 €/kk)
Rakennusvuosi:
2017
Kerros:
3
Jäähdytetty:
Kyllä
Tilan ominaisuudet:
- Avotoimisto
- Huonetoimisto
- Jäähdytetty
- Keittiö, oma
- Koneellinen ilmanvaihto
- Korkea huonekorkeus
- Monitilatoimisto
- Muuttovalmis
- Näkyvällä paikalla
- Valokuituyhteys
- Vapautumassa
- Vesipiste
- WC, oma
Kiinteistön palvelut:
- Asiakaspysäköinti
- Pysäköintihalli
- Pyöräparkki
- Ravintola
- Suihkutilat
Yhteyshenkilö:
Mikko Ranta
mikko.ranta@hausala.fi
050 360 6500
mikko.ranta@hausala.fi
050 360 6500
Mika Savikko
mika.savikko@hausala.fi
050 472 7077
mika.savikko@hausala.fi
050 472 7077
