Vuokrataan - Koskitammi
Kelloportinkatu 1, 33100 Tampere, Tampella
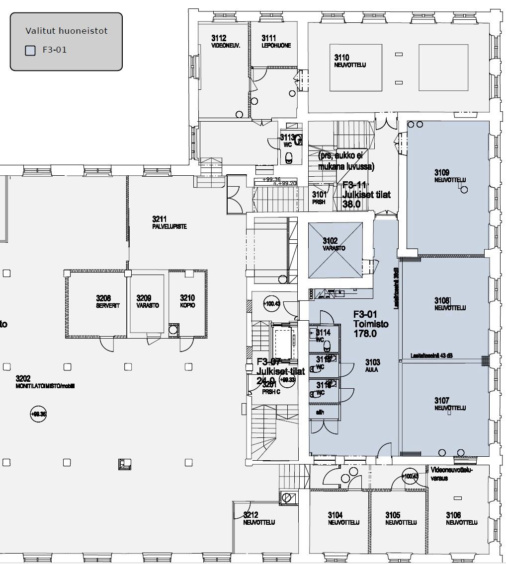
Vuokrataan siisti 3. kerroksen 178 m² toimistotila Tampellasta. Kohde sijaitsee ydinkeskustan tuntumassa, Tammerkosken rannalla. Kaikki tilat on täysin uusittu vuonna 2017. Tämä tila on aikaisemmin toiminut kokouskeskuksena ja tilassa on tehokkaat & toimivat tilaratkaisut, sekä erinomaiset puitteet monipuolisiin työskentely- ja neuvottelutarpeisiin
Kiinteistöllä on oma pysäköintihalli ja pihaparkkipaikkoja. Paljon pysäköintitilaa tarvitseville yrityksille on vuokrattavissa paikkoja myös lähialueen pysäköintilaitoksista.
Kohteeseen on hyvät julkiset yhteydet; Raitiovaunupysäkille n. 700 m ja lähin bussipysäkki sijaitsee n. 180 m päässä. Kiinteistöllä on sertifikaatti LEED CSv3 Gold.
Kysy lisätietoja tai sovitaan käynti kohteelle jo tänään!
Kiinteistöllä on oma pysäköintihalli ja pihaparkkipaikkoja. Paljon pysäköintitilaa tarvitseville yrityksille on vuokrattavissa paikkoja myös lähialueen pysäköintilaitoksista.
Kohteeseen on hyvät julkiset yhteydet; Raitiovaunupysäkille n. 700 m ja lähin bussipysäkki sijaitsee n. 180 m päässä. Kiinteistöllä on sertifikaatti LEED CSv3 Gold.
Kysy lisätietoja tai sovitaan käynti kohteelle jo tänään!
Kohteen tiedot
Ympäristösertifikaatti:
LEED
Pinta-ala:
178 m²
Hinta-arvio:
24 - 28 €/m²
(4 272 - 4 984 €/kk)
Rakennusvuosi:
2017
Kerros:
3
Jäähdytetty:
Kyllä
Tilan ominaisuudet:
- Heti vapaa
- Huonetoimisto
- Jäähdytetty
- Keittiö, oma
- Korkea huonekorkeus
- Monitilatoimisto
- Näkyvällä paikalla
- Tila muokattavissa
- WC, oma
Kiinteistön palvelut:
- Asiakaspysäköinti
- Pysäköintihalli
- Pyöräparkki
- Ravintola
Yhteyshenkilö:
Mikko Ranta
mikko.ranta@hausala.fi
050 360 6500
mikko.ranta@hausala.fi
050 360 6500
Mika Savikko
mika.savikko@hausala.fi
050 472 7077
mika.savikko@hausala.fi
050 472 7077
