Vuokrataan - Kaitilantie 30
Kaitilantie 30, 16300 Orimattila
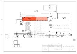
Vuokrataan Orimattilasta katutason 330 m² tuotanto- tai varastotila. Varastohallin korkeus on 7 m. Lastauslaiturin ovikorkeus 2,45 m. Sisäänajomahdollisuus. Oven edustalla on yksi lattiakaivo. Halliin on helppo liittää tarvittava määrä lisätilaa n. 500 m² asti, merkitty pohjakuvaan vaaleammalla värillä.
Kysy rohkeasti lisätietoja ja sovitaan käynti kohteella!
Kysy rohkeasti lisätietoja ja sovitaan käynti kohteella!
Kohteen tiedot
Pinta-ala:
330 m² - 500 m²
Hinta-arvio:
5 - 9 €/m²
(1 650 - 4 500 €/kk)
Kerros:
Katutaso
Tilan ominaisuudet:
- Heti vapaa
- Huonetoimisto
- Nosto-ovi
- Vesipiste
- Voimavirta
- WC, oma
Kiinteistön palvelut:
- Asiakaspysäköinti
Yhteyshenkilö:
Tero Ala-Hannula
tero.ala-hannula@hausala.fi
040 508 1351
tero.ala-hannula@hausala.fi
040 508 1351
Mika Savikko
mika.savikko@hausala.fi
050 472 7077
mika.savikko@hausala.fi
050 472 7077
