Vuokrataan - Valokaari 10
Valokaari 10, 00750 Helsinki, Suutarila
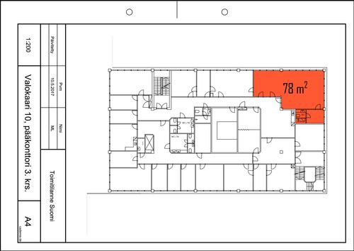
Vuokrataan Helsingin Suutarilasta pääkonttorirakennuksen ylimmästä kolmannesta kerroksesta noin 78 m²:n kokoinen valoisa toimistotila. Toimisto on avointa tilaa, vanha teollisuuspatruunan kulmahuone, jossa oma mukavuuslaitos. Heti vieressä on yhteiskäytössä avara kattoikkunallinen keittiö- ja oleskelutila.
Kysy rohkeasti lisätietoja ja sovitaan käynti kohteella!
Kysy rohkeasti lisätietoja ja sovitaan käynti kohteella!
Kohteen tiedot
Pinta-ala:
78 m²
Hinta-arvio:
10 - 14 €/m²
(780 - 1 092 €/kk)
Kerros:
3
Jäähdytetty:
Kyllä
Tilan ominaisuudet:
- Avotoimisto
- Heti vapaa
- Jäähdytetty
- Keittiö, yhteiskäyttöinen
- Koneellinen ilmanvaihto
- Muuttovalmis
- WC, oma
Kiinteistön palvelut:
- Asiakaspysäköinti
Yhteyshenkilö:
Matti Pöyhiä
matti.poyhia@hausala.fi
040 722 6650
matti.poyhia@hausala.fi
040 722 6650
Mika Savikko
mika.savikko@hausala.fi
050 472 7077
mika.savikko@hausala.fi
050 472 7077
