Vuokrataan - Itälahdenkatu 23
Itälahdenkatu 23, 00210 Helsinki, Lauttasaari
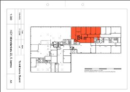
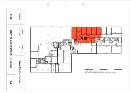
Vuokrattavana viidennen kerroksen 194 m² toimistotila. Tilassa on kuusi ikkunallista huonetta ja kaksi varastohuonetta. Keittiö ja wc ovat yhteisessä käytössä toisen vuokralaisen kanssa.
Kysy rohkeasti lisätietoja ja sovitaan käynti kohteella!
Kysy rohkeasti lisätietoja ja sovitaan käynti kohteella!
Kohteen tiedot
Pinta-ala:
194 m²
Hinta-arvio:
9 - 13 €/m²
(1 746 - 2 522 €/kk)
Kerros:
5
Tilan ominaisuudet:
- Heti vapaa
- Hissi
- Huonetoimisto
- Keittiö, yhteiskäyttöinen
- Tila muokattavissa
- Vapautumassa
- WC, yhteiskäyttöinen
- Ylinkerros
Kiinteistön palvelut:
- Lastauslaituri
- Tavarahissi
Yhteyshenkilö:
Mikko Ranta
mikko.ranta@hausala.fi
050 360 6500
mikko.ranta@hausala.fi
050 360 6500
Mika Savikko
mika.savikko@hausala.fi
050 472 7077
mika.savikko@hausala.fi
050 472 7077
