Vuokrataan - Sierakiventie 8-10
Sierakiventie 8-10, 02780 Espoo, Kauklahti
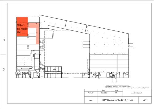
Vuokrataan Espoon Kauklahdesta 300 m² varastotila. Vapaa korkeus on 5 m. Kuormalavahyllyt valmiina. Nosto-ovet ja lastauslaituri. Sisäänajomahdollisuus pakettiautolle. Tarvittaessa tiloja voi käyttää myös tuotantoon.
Kysy rohkeasti lisätietoja ja sovitaan käynti kohteella!
Kysy rohkeasti lisätietoja ja sovitaan käynti kohteella!
Kohteen tiedot
Pinta-ala:
300 m²
Hinta-arvio:
11 - 15 €/m²
(3 300 - 4 500 €/kk)
Kerros:
1
Tilan ominaisuudet:
- Heti vapaa
- Nosto-ovi
- Voimavirta
Kiinteistön palvelut:
- Asiakaspysäköinti
- Lastauslaituri
Yhteyshenkilö:
Mikko Ranta
mikko.ranta@hausala.fi
050 360 6500
mikko.ranta@hausala.fi
050 360 6500
Mika Savikko
mika.savikko@hausala.fi
050 472 7077
mika.savikko@hausala.fi
050 472 7077
