Vuokrataan - Mikonkatu 13
Kaisaniemenkatu 1, 00100 Helsinki, Keskusta
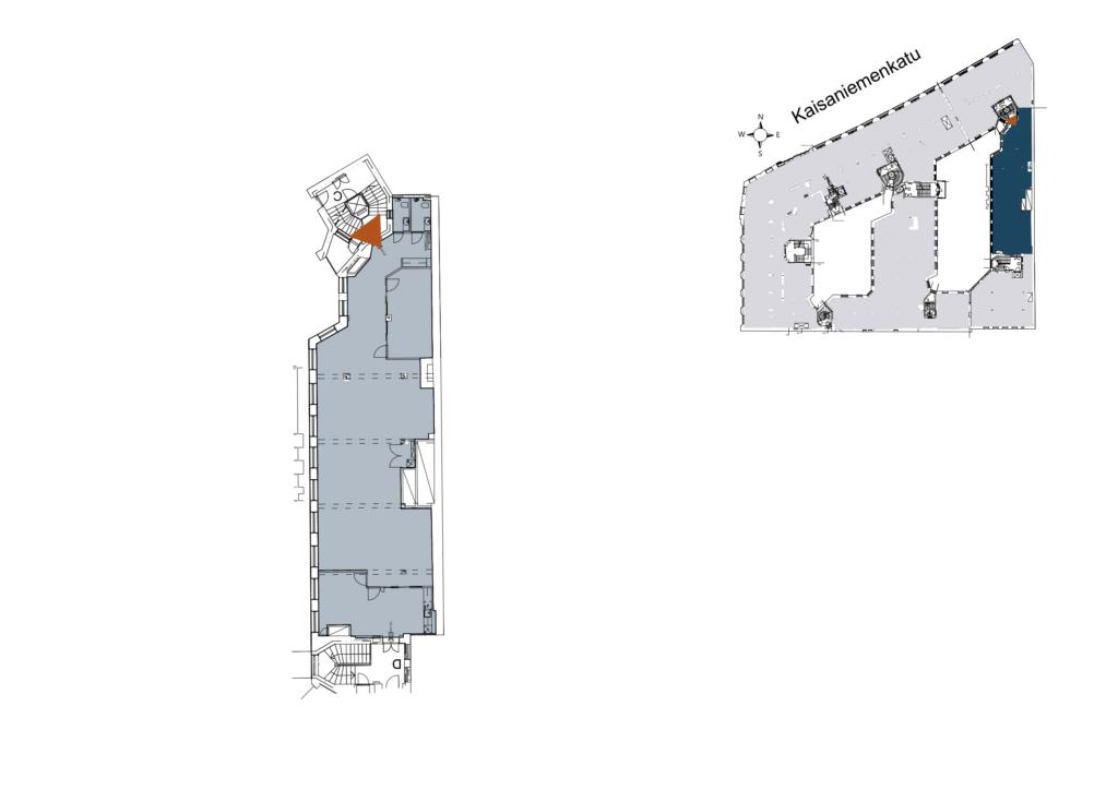
Vapautumassa syksyllä 2026 neljännen kerroksen moderni 237 m² toimisto Helsingin keskustasta. Tila koostuu pääosin avotilasta. Tilasta löytyy oma keittiöalue, sekä wc-tilat.
Kiinteistön ympäristöstä löytyvät monipuoliset palvelut. Sijainti on hyvien julkisten liikenteen yhteyksien päässä. Kellaritiloihin on uusittu suihku- ja pukutilat. Kiinteistölle on rakennettu turvallinen pyörien säilytysmahdollisuus ja latausmahdollisuus sähköpyörille.
Kysy lisätietoja tai sovitaan käynti kohteelle jo tänään!
Kiinteistön ympäristöstä löytyvät monipuoliset palvelut. Sijainti on hyvien julkisten liikenteen yhteyksien päässä. Kellaritiloihin on uusittu suihku- ja pukutilat. Kiinteistölle on rakennettu turvallinen pyörien säilytysmahdollisuus ja latausmahdollisuus sähköpyörille.
Kysy lisätietoja tai sovitaan käynti kohteelle jo tänään!
Kohteen tiedot
Pinta-ala:
237 m²
Hinta-arvio:
31 - 35 €/m²
(7 347 - 8 295 €/kk)
Rakennusvuosi:
1930
Kerros:
4/8
Jäähdytetty:
Kyllä
Tilan ominaisuudet:
- Hissi
- Jäähdytetty
- Keittiö, oma
- Koneellinen ilmanvaihto
- Monitilatoimisto
- Valokuituyhteys
- Vapautumassa
- WC, oma
Kiinteistön palvelut:
- Pyöräparkki
- Ravintola
- Suihkutilat
Yhteyshenkilö:
Mikko Ranta
mikko.ranta@hausala.fi
050 360 6500
mikko.ranta@hausala.fi
050 360 6500
Mika Savikko
mika.savikko@hausala.fi
050 472 7077
mika.savikko@hausala.fi
050 472 7077
