Vuokrataan - Tirkkosen talo
Kauppakatu 6 (Kuninkaankatu 21), 33210 Tampere, Keskusta
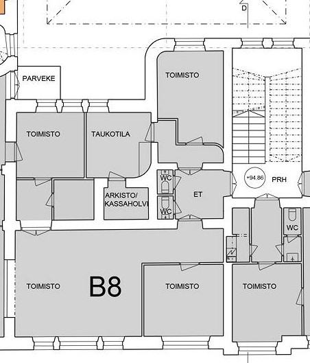
Vuokrataan Tampereen keskustasta toisen kerroksen heti vapaa näyttävä 134 m² toimistotila B8.
Tilan erikoisuutena on korkea huonekorkeus sekä edustava Jugend-tyyli.
Tämä alun perin Kauppaneuvos Tirkkosen rakennuttama jugendtyylinen liiketalo Tampereen keskustassa on yksi kaupungin kauneimmista helmistä. Arkkitehdit Lars Sonck ja Birger Federley suunnittelivat talon, jossa on nähtävissä 1900-luvun alun putkipostilaitteisto.
Kiinteistön arkkitehtuuri on täynnä huoliteltuja yksityiskohtia, kuten seinäreliefejä, kaiteita ja värikkäitä kakluuneja. Vuonna 1901 valmistunutta vanhaa osaa täydentää 1986 valmistunut laajennusosa ja 2010-luvulla katettu sisäpiha, jossa toimii kahvila. Talo sijaitsee vilkkaan kävelykadun varrella, lähellä Hämeenkatua, ja autopaikkoja löytyy omasta autohallista sekä lähellä olevasta pysäköintitalosta.
Kysy rohkeasti lisätietoja ja sovitaan käynti kohteella jo tänään!
Tilan erikoisuutena on korkea huonekorkeus sekä edustava Jugend-tyyli.
Tämä alun perin Kauppaneuvos Tirkkosen rakennuttama jugendtyylinen liiketalo Tampereen keskustassa on yksi kaupungin kauneimmista helmistä. Arkkitehdit Lars Sonck ja Birger Federley suunnittelivat talon, jossa on nähtävissä 1900-luvun alun putkipostilaitteisto.
Kiinteistön arkkitehtuuri on täynnä huoliteltuja yksityiskohtia, kuten seinäreliefejä, kaiteita ja värikkäitä kakluuneja. Vuonna 1901 valmistunutta vanhaa osaa täydentää 1986 valmistunut laajennusosa ja 2010-luvulla katettu sisäpiha, jossa toimii kahvila. Talo sijaitsee vilkkaan kävelykadun varrella, lähellä Hämeenkatua, ja autopaikkoja löytyy omasta autohallista sekä lähellä olevasta pysäköintitalosta.
Kysy rohkeasti lisätietoja ja sovitaan käynti kohteella jo tänään!
Kohteen tiedot
Pinta-ala:
134 m²
Hinta-arvio:
22 - 26 €/m²
(2 948 - 3 484 €/kk)
Rakennusvuosi:
1901
Kerros:
2
Tilan ominaisuudet:
- Heti vapaa
- Huonetoimisto
- Keittiö, oma
- Koneellinen ilmanvaihto
- Korkea huonekorkeus
- WC, oma
Kiinteistön palvelut:
- Pysäköintihalli
- Suihkutilat
Yhteyshenkilö:
Mika Savikko
mika.savikko@hausala.fi
050 472 7077
mika.savikko@hausala.fi
050 472 7077
Tero Ala-Hannula
tero.ala-hannula@hausala.fi
040 508 1351
tero.ala-hannula@hausala.fi
040 508 1351
