Vuokrataan - Pitäjänmäen Voltti
Hiomotie 32, 00380 Helsinki, Pitäjänmäki
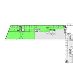
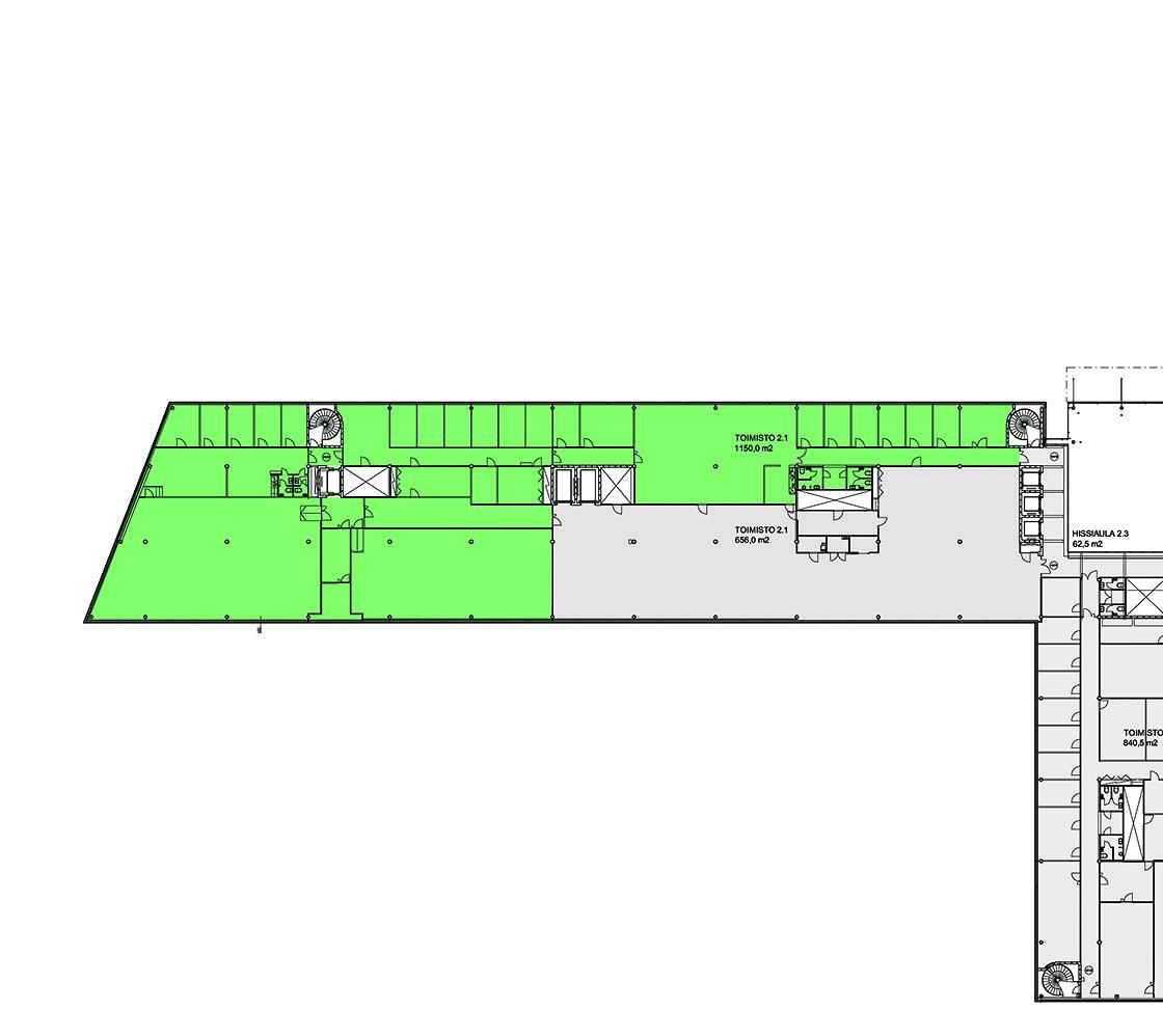
Vuokrattavana moderni toimitila 1 150 m²
Tervetuloa Pitäjänmäen Volttiin, nykyaikaiseen, täysin uudistettuun toimitilakohteeseen, jossa tehokkuus ja tyylikkyys kulkevat käsi kädessä. Tämä heti vapaa 840m2 toimistokokonaisuus tarjoaa yrityksellesi muuntojoustavat ja viihtyisät tilat erinomaisella sijainnilla Helsingin Pitäjänmäessä.
Vuonna 1999 valmistunut ja vuonna 2020 perusteellisesti saneerattu Voltti vastaa nykypäivän työnteon vaatimuksiin. Kiinteistön kuudessa kerroksessa on tilaratkaisuja eri kokoisille toimijoille alkaen 45 neliöstä aina 1800 neliöön asti. Valoisat ja avarat tilat tarjoavat puitteet niin keskittymistä vaativaan työhön kuin tiimityöskentelyynkin.
Voltti tarjoaa kattavan valikoiman palveluita, jotka tekevät arjesta sujuvaa ja viihtyisää. Talossa on aulapalvelu, moderni kuntosali sekä monipuoliset neuvottelu- ja edustustilat eri tarpeisiin. Työn lomassa tai sen jälkeen voi rentoutua rakennuksen edustussaunassa tai nauttia lounasta tyylikkäässä, 170-paikkaisessa ravintola Kuohussa, jonka palveluista vastaa Antell Oy.
Sijainti on erinomainen: Valimon juna-asema, Vihdintien bussilinjat ja Raide-Jokeri takaavat sujuvat yhteydet joka suuntaan. Kiinteistössä on myös yli 200 autopaikan pysäköintihalli sekä 24 vieraspaikkaa aivan sisäänkäynnin edustalla.
Pitäjänmäen Voltti on inspiroiva ja toimiva ympäristö, jossa työ sujuu ja viihtyvyys on huipussaan. Tule tutustumaan!
Huom! Osassa kuvista on käytetty virtuaalistailausta.
Kysy rohkeasti lisätietoja ja sovitaan käynti kohteella jo tänään!
Tervetuloa Pitäjänmäen Volttiin, nykyaikaiseen, täysin uudistettuun toimitilakohteeseen, jossa tehokkuus ja tyylikkyys kulkevat käsi kädessä. Tämä heti vapaa 840m2 toimistokokonaisuus tarjoaa yrityksellesi muuntojoustavat ja viihtyisät tilat erinomaisella sijainnilla Helsingin Pitäjänmäessä.
Vuonna 1999 valmistunut ja vuonna 2020 perusteellisesti saneerattu Voltti vastaa nykypäivän työnteon vaatimuksiin. Kiinteistön kuudessa kerroksessa on tilaratkaisuja eri kokoisille toimijoille alkaen 45 neliöstä aina 1800 neliöön asti. Valoisat ja avarat tilat tarjoavat puitteet niin keskittymistä vaativaan työhön kuin tiimityöskentelyynkin.
Voltti tarjoaa kattavan valikoiman palveluita, jotka tekevät arjesta sujuvaa ja viihtyisää. Talossa on aulapalvelu, moderni kuntosali sekä monipuoliset neuvottelu- ja edustustilat eri tarpeisiin. Työn lomassa tai sen jälkeen voi rentoutua rakennuksen edustussaunassa tai nauttia lounasta tyylikkäässä, 170-paikkaisessa ravintola Kuohussa, jonka palveluista vastaa Antell Oy.
Sijainti on erinomainen: Valimon juna-asema, Vihdintien bussilinjat ja Raide-Jokeri takaavat sujuvat yhteydet joka suuntaan. Kiinteistössä on myös yli 200 autopaikan pysäköintihalli sekä 24 vieraspaikkaa aivan sisäänkäynnin edustalla.
Pitäjänmäen Voltti on inspiroiva ja toimiva ympäristö, jossa työ sujuu ja viihtyvyys on huipussaan. Tule tutustumaan!
Huom! Osassa kuvista on käytetty virtuaalistailausta.
Kysy rohkeasti lisätietoja ja sovitaan käynti kohteella jo tänään!
Kohteen tiedot
Pinta-ala:
1 150 m²
Hinta-arvio:
19 - 23 €/m²
(21 850 - 26 450 €/kk)
Rakennusvuosi:
1999
Kerros:
2
Tilan ominaisuudet:
- Heti vapaa
- Hissi
- Hybriditoimisto
- Keittiö, oma
- Koneellinen ilmanvaihto
- WC, oma
Kiinteistön palvelut:
- Asiakaspysäköinti
- Aulapalvelut
- Edustustila
- Kokoustilat
- Kuntosali
- Pysäköintihalli
- Ravintola
- Sauna
- Suihkutilat
Yhteyshenkilö:
Mikko Ranta
mikko.ranta@hausala.fi
050 360 6500
mikko.ranta@hausala.fi
050 360 6500
Mika Savikko
mika.savikko@hausala.fi
050 472 7077
mika.savikko@hausala.fi
050 472 7077
