Vuokrataan - VERK
Sörnäistenkatu 1, 00580 Helsinki, Kalasatama
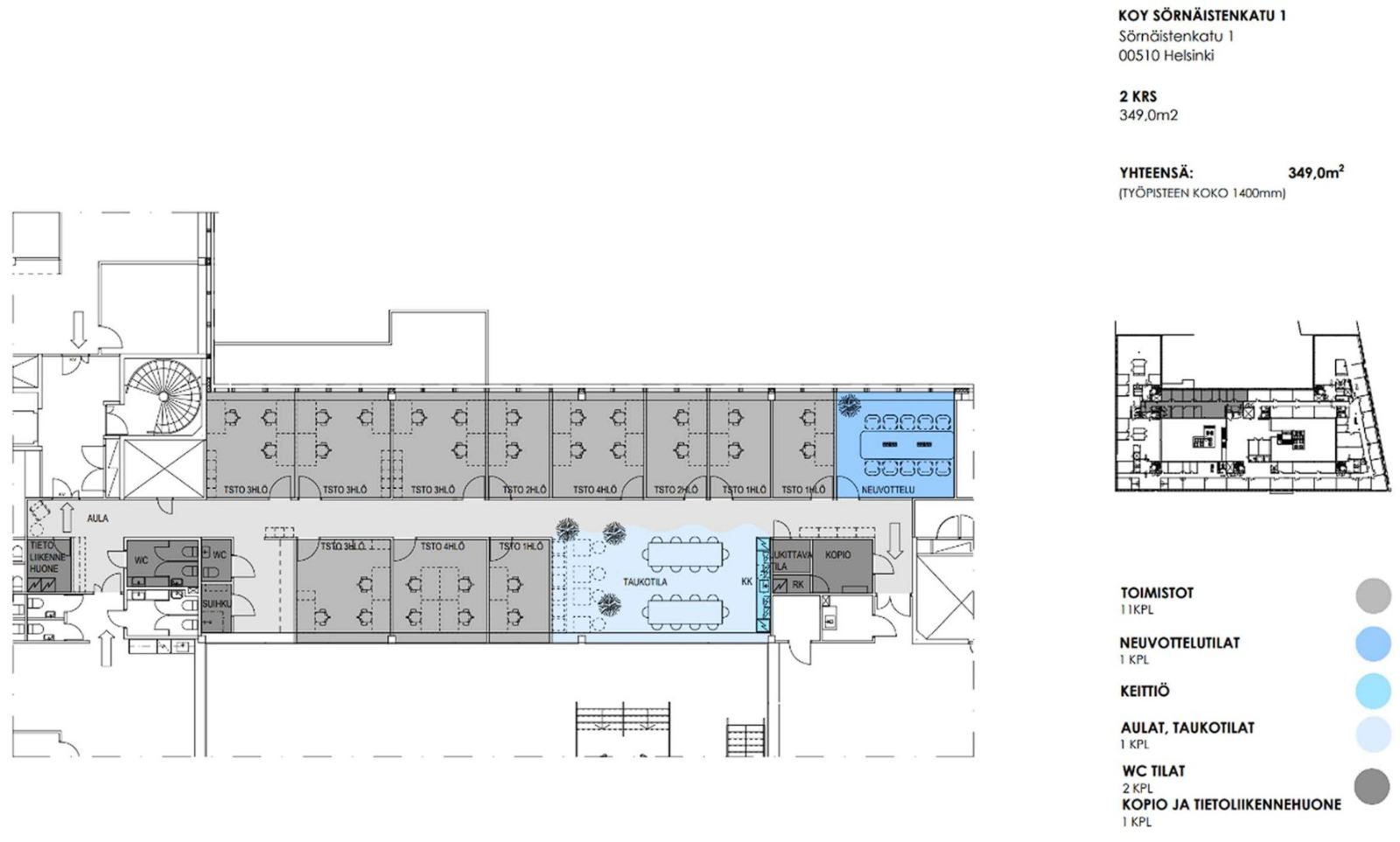
Vuokrataan Helsingin Kalasatamasta toisen kerroksen 349 m² toimistotila. Toimistotila, josta huikea urbaani näkymä Suvilahteen.
Tämä kohde ympäristöineen on kuin luotu nuorelle ja luovalle yritykselle. Kiinteistö sijaitsee trendikkäällä Kalasataman alueella, joka kehittyy ja kasvaa koko ajan. Toimistotilat ovat muokattavissa, ja niitä voidaan uudistaa yrityksen tarpeiden mukaan. Kiinteistöstä on mahdollista saada suuria, jopa 3 000 neliön toimitiloja.
Valoisassa ja avarassa rakennuksessa on atriumpiha ja upeat näkymät, sillä ikkunat ulottuvat lattiasta kattoon asti. Kiinteistön palveluihin kuuluu muun muassa aulavastaanotto, Linkosuon lounasravintola-kahvila, kuntosali sekä kattavat kokoustilat. Lähellä sijaitsevan Teurastamon alueella on useita ravintoloita, baareja ja kahviloita.
Kulkuyhteydet Sörnäistenkadulle ovat erinomaiset. Metro pysähtyy viereisellä Kalasataman asemalla ja työmatka-autoilijoita varten on oma pysäköintihalli.
Kohteella on BREEAM Very Good -ympäristösertifikaatti, käytössä on hiilineutraali kiertolämpö sekä 100% tuulivoima, joka on käytössä kaikissa Antiloopin kiinteistöissä. Näin ollen kiinteistön käyttämä energia on hiilineutraalia eli käytön aikaiset päästöt kiinteistössä on nolla. Kohteen yleiset tilat on luotu kiertotaloutta hyödyntäen ja kohteen POOL-joustotila on kalustettu kokonaan kierrätyskalustein. Kohteen asiakasmuutostöissä hyödynnetään mahdollisuuksien mukaan kiertotaloutta, esimerkiksi lasielementeissä.
Kysy rohkeasti lisätietoja ja sovitaan käynti kohteella jo tänään!
Tämä kohde ympäristöineen on kuin luotu nuorelle ja luovalle yritykselle. Kiinteistö sijaitsee trendikkäällä Kalasataman alueella, joka kehittyy ja kasvaa koko ajan. Toimistotilat ovat muokattavissa, ja niitä voidaan uudistaa yrityksen tarpeiden mukaan. Kiinteistöstä on mahdollista saada suuria, jopa 3 000 neliön toimitiloja.
Valoisassa ja avarassa rakennuksessa on atriumpiha ja upeat näkymät, sillä ikkunat ulottuvat lattiasta kattoon asti. Kiinteistön palveluihin kuuluu muun muassa aulavastaanotto, Linkosuon lounasravintola-kahvila, kuntosali sekä kattavat kokoustilat. Lähellä sijaitsevan Teurastamon alueella on useita ravintoloita, baareja ja kahviloita.
Kulkuyhteydet Sörnäistenkadulle ovat erinomaiset. Metro pysähtyy viereisellä Kalasataman asemalla ja työmatka-autoilijoita varten on oma pysäköintihalli.
Kohteella on BREEAM Very Good -ympäristösertifikaatti, käytössä on hiilineutraali kiertolämpö sekä 100% tuulivoima, joka on käytössä kaikissa Antiloopin kiinteistöissä. Näin ollen kiinteistön käyttämä energia on hiilineutraalia eli käytön aikaiset päästöt kiinteistössä on nolla. Kohteen yleiset tilat on luotu kiertotaloutta hyödyntäen ja kohteen POOL-joustotila on kalustettu kokonaan kierrätyskalustein. Kohteen asiakasmuutostöissä hyödynnetään mahdollisuuksien mukaan kiertotaloutta, esimerkiksi lasielementeissä.
Kysy rohkeasti lisätietoja ja sovitaan käynti kohteella jo tänään!
Kohteen tiedot
Ympäristösertifikaatti:
BREEAM
Pinta-ala:
349 m²
Hinta-arvio:
21 - 25 €/m²
(7 329 - 8 725 €/kk)
Kerros:
2
Tilan ominaisuudet:
- Heti vapaa
- Hissi
- Huonetoimisto
- Keittiö, oma
- Koneellinen ilmanvaihto
- Tila muokattavissa
- Vesipiste
- WC, oma
Kiinteistön palvelut:
- Aulapalvelut
- Edustustila
- Kiinteistöpalvelut
- Kokoustilat
- Kuntosali
- Pysäköintihalli
- Pyöräparkki
- Ravintola
- Siivouspalvelu
- Turvapalvelut
Yhteyshenkilö:
Mika Savikko
mika.savikko@hausala.fi
050 472 7077
mika.savikko@hausala.fi
050 472 7077
Mikko Ranta
mikko.ranta@hausala.fi
050 360 6500
mikko.ranta@hausala.fi
050 360 6500
