Vuokrataan - Lakalaivan Toimistotalo I
Postitorvenkatu 16, 33840 Tampere, Lahdesjärvi
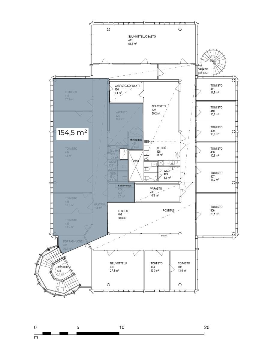
Vuokrataan siisti ja muuttovalmis neljännen kerroksen 154,5 m² toimistotila Lahdesjärveltä, Lakalaivan toimistotalosta. Tila soveltuu erinomaisesti yritykselle, joka arvostaa rauhallista työympäristöä ja toimivia tilaratkaisuja. Tämä tila on vapaa 1.7.2026 alkaen. Kiinteistössä on valokuituyhteys, tuloilman viilennys sekä koneellinen ilmanvaihto.
Lakalaivan Toimistotalo I on näyttävä toimistorakennus moottoritien varressa, lähellä Ikeaa. Kohteeseen on erinomaiset kulkuyhteydet autolla, polkupyörällä sekä linja- autolla. Pihassa on vuokrattavia autopaikkoja sekä pyöräkatos. Huom. osa kuvista on digitaalisesti käsiteltyjä.
Ota yhteyttä, käydään kiertämässä kohteen tilat ja suunnitellaan teille sopiva kokonaisuus.
Lakalaivan Toimistotalo I on näyttävä toimistorakennus moottoritien varressa, lähellä Ikeaa. Kohteeseen on erinomaiset kulkuyhteydet autolla, polkupyörällä sekä linja- autolla. Pihassa on vuokrattavia autopaikkoja sekä pyöräkatos. Huom. osa kuvista on digitaalisesti käsiteltyjä.
Ota yhteyttä, käydään kiertämässä kohteen tilat ja suunnitellaan teille sopiva kokonaisuus.
Kohteen tiedot
Pinta-ala:
154 m²
Hinta-arvio:
12 - 16 €/m²
(1 848 - 2 464 €/kk)
Rakennusvuosi:
1990
Kerros:
4
Jäähdytetty:
Kyllä
Tilan ominaisuudet:
- Jäähdytetty
- Keittiö, oma
- Koneellinen ilmanvaihto
- Monitilatoimisto
- Muuttovalmis
- Näkyvällä paikalla
- Sosiaalitila
- Tila muokattavissa
- Valokuituyhteys
- Vapautumassa
- Vesipiste
- WC, oma
Kiinteistön palvelut:
- Asiakaspysäköinti
- Keittiö
- Kiinteistöpalvelut
- Oleskelutila
- Piha
- Pyöräparkki
- Turvapalvelut
Yhteyshenkilö:
Mikko Ranta
mikko.ranta@hausala.fi
050 360 6500
mikko.ranta@hausala.fi
050 360 6500
Mika Savikko
mika.savikko@hausala.fi
050 472 7077
mika.savikko@hausala.fi
050 472 7077
