Vuokrataan - Lakalaivan Toimistotalo I
Postitorvenkatu 16, 33840 Tampere, Lahdesjärvi
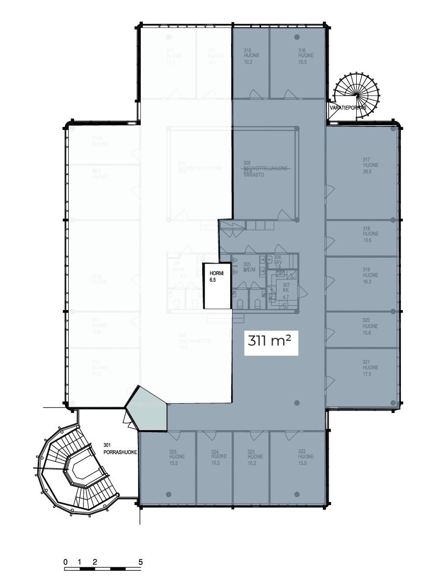
Vuokrataan siisti ja muuttovalmis kolmannen kerroksen 311 m² toimistotila Lahdesjärveltä, Lakalaivan toimistotalosta. Tämä tila on valoisa sekä nykyaikainen. Tämä tila on vapaa 1.8.2026 alkaen. Kiinteistössä on valokuituyhteys, tuloilman viilennys sekä koneellinen ilmanvaihto.
Lakalaivan Toimistotalo I on näyttävä toimistorakennus moottoritien varressa, lähellä Ikeaa. Kohteeseen on erinomaiset kulkuyhteydet autolla, polkupyörällä sekä linja- autolla. Pihassa on vuokrattavia autopaikkoja sekä pyöräkatos. Huom. osa kuvista on digitaalisesti käsiteltyjä.
Ota yhteyttä, käydään kiertämässä kohteen tilat ja suunnitellaan teille sopiva kokonaisuus.
Lakalaivan Toimistotalo I on näyttävä toimistorakennus moottoritien varressa, lähellä Ikeaa. Kohteeseen on erinomaiset kulkuyhteydet autolla, polkupyörällä sekä linja- autolla. Pihassa on vuokrattavia autopaikkoja sekä pyöräkatos. Huom. osa kuvista on digitaalisesti käsiteltyjä.
Ota yhteyttä, käydään kiertämässä kohteen tilat ja suunnitellaan teille sopiva kokonaisuus.
Kohteen tiedot
Pinta-ala:
311 m²
Hinta-arvio:
12 - 16 €/m²
(3 732 - 4 976 €/kk)
Rakennusvuosi:
1990
Kerros:
3
Jäähdytetty:
Kyllä
Tilan ominaisuudet:
- Jäähdytetty
- Keittiö, oma
- Koneellinen ilmanvaihto
- Monitilatoimisto
- Muuttovalmis
- Näkyvällä paikalla
- Sosiaalitila
- Tila muokattavissa
- Valokuituyhteys
- Vapautumassa
- Vesipiste
- WC, oma
Kiinteistön palvelut:
- Asiakaspysäköinti
- Keittiö
- Kiinteistöpalvelut
- Oleskelutila
- Piha
- Pyöräparkki
- Turvapalvelut
Yhteyshenkilö:
Mikko Ranta
mikko.ranta@hausala.fi
050 360 6500
mikko.ranta@hausala.fi
050 360 6500
Mika Savikko
mika.savikko@hausala.fi
050 472 7077
mika.savikko@hausala.fi
050 472 7077
