Vuokrataan - Korttelikeskus Ruohis
Itämerenkatu 21, 00180 Helsinki, Ruoholahti
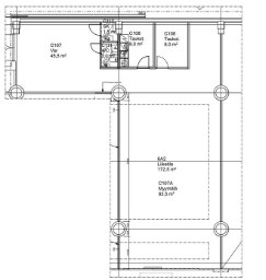
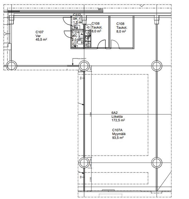
Vuokrataan Helsingin Ruoholahdesta ensimmäisen kerroksen 173 m² liiketila. Tilassa takahuonepaketti, jossa minikeittö, wc sekä toimistohuone. Varastoalueelta suora yhteys lastauslaiturille. Ei sovellu ravintolatilaksi.
Sijainti Ruoholahdessa, aivan Länsisataman kupeessa, takaa loistavat kulkuyhteydet niin julkisilla, pyörällä kuin omalla autollakin. Ruohis kortteliin on helppo tulla ja hyvä jäädä.
Tule tutustumaan ja löydä uusi koti yrityksellesi. Ota yhteyttä jo tänään!
Sijainti Ruoholahdessa, aivan Länsisataman kupeessa, takaa loistavat kulkuyhteydet niin julkisilla, pyörällä kuin omalla autollakin. Ruohis kortteliin on helppo tulla ja hyvä jäädä.
Tule tutustumaan ja löydä uusi koti yrityksellesi. Ota yhteyttä jo tänään!
Kohteen tiedot
Ympäristösertifikaatti:
BREEAM
Pinta-ala:
173 m²
Hinta-arvio:
30 - 34 €/m²
(5 190 - 5 882 €/kk)
Kerros:
1
Tilan ominaisuudet:
- Heti vapaa
- Keittiö, oma
- Korkea huonekorkeus
- WC, oma
Kiinteistön palvelut:
- Asiakaspysäköinti
- Aulapalvelut
- Edustustila
- Kokoustilat
- Kuntosali
- Pysäköintihalli
- Pyöräparkki
- Ravintola
- Sauna
- Suihkutilat
Yhteyshenkilö:
Mikko Ranta
mikko.ranta@hausala.fi
050 360 6500
mikko.ranta@hausala.fi
050 360 6500
Mika Savikko
mika.savikko@hausala.fi
050 472 7077
mika.savikko@hausala.fi
050 472 7077
