Vuokrataan - Uutta toimitilaa Teivosta
Hiitintie 10, 33400 Tampere, Teivo
ENNAKKOMARKKINOINNISSA UUTTA TOIMITILAA NÄKYVÄLTÄ PAIKALTA TEIVOSTA!
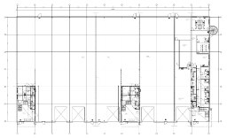
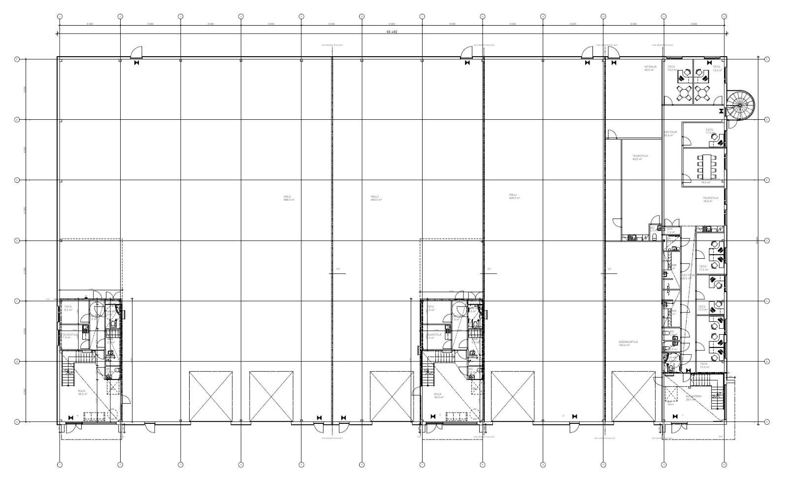
Ylöjärven Teivoon rakennetaan uusi toimitilakiinteistö, josta on nyt vuokrattavissa tiloja alkaen 720 m² aina 2500 m² asti.
Tilat soveltuvat erinomaisesti esimerkiksi tuotanto- tai logistiikka- alan toimijalle suuren tontin ansiosta.
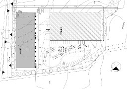
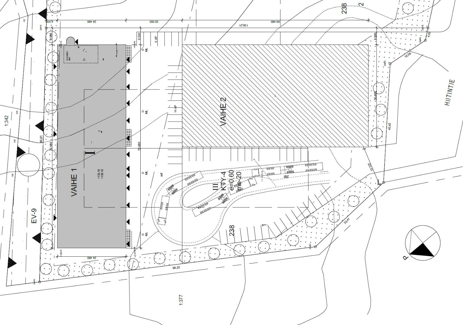
Kuvat ovat viitteellisiä. Vaihe 2. tilat ja rakennuksen ilme suunnitellaan ja rakennetaan asiakkaan toiveiden mukaan.
Rakennuksen vapaa sisäkorkeus on noin 7m. Tämä rakennus on mahdollista vuokrata kokonaan tai osissa, alkaen 720 m².
Kohde sijaitsee Teivon aktiivisella alueella. Kiinteistöltä on erinomaiset kulkuyhteydet. Vaasan tielle noin 0,9 km.
Ota yhteyttä ja kysy rohkeasti lisätietoja jo tänään!
Ylöjärven Teivoon rakennetaan uusi toimitilakiinteistö, josta on nyt vuokrattavissa tiloja alkaen 720 m² aina 2500 m² asti.
Tilat soveltuvat erinomaisesti esimerkiksi tuotanto- tai logistiikka- alan toimijalle suuren tontin ansiosta.
Kuvat ovat viitteellisiä. Vaihe 2. tilat ja rakennuksen ilme suunnitellaan ja rakennetaan asiakkaan toiveiden mukaan.
Rakennuksen vapaa sisäkorkeus on noin 7m. Tämä rakennus on mahdollista vuokrata kokonaan tai osissa, alkaen 720 m².
Kohde sijaitsee Teivon aktiivisella alueella. Kiinteistöltä on erinomaiset kulkuyhteydet. Vaasan tielle noin 0,9 km.
Ota yhteyttä ja kysy rohkeasti lisätietoja jo tänään!
Kohteen tiedot
Pinta-ala:
720 m² - 2 500 m²
Hinta-arvio:
9 - 13 €/m²
(6 480 - 32 500 €/kk)
Rakennusvuosi:
2026
Kunto:
Uudisrakennus
Kerros:
1 - 2
Yhteyshenkilö:
Mika Savikko
mika.savikko@hausala.fi
050 472 7077
mika.savikko@hausala.fi
050 472 7077
Tero Ala-Hannula
tero.ala-hannula@hausala.fi
040 508 1351
tero.ala-hannula@hausala.fi
040 508 1351
