Vuokrataan - Hansa Center
Puutarhakatu 45, 20100 Turku
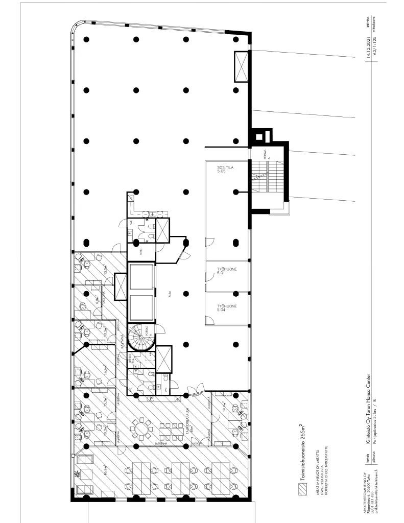
Puutarhakatu 45:ssä, erinomaisella sijainnilla Turun keskustan tuntumassa, tarjolla siisti ja toimiva 265 m² toimistotila monenlaiseen yrityskäyttöön. Tilakokonaisuus on selkeä ja helposti muunneltavissa erilaisiin tarpeisiin, olipa kyseessä avokonttori, tiimityötilat tai rauhallisemmat työhuoneet.
Toimistossa on oma keittiö sekä wc-tilat, jotka tuovat arkeen sujuvuutta ja mukavuutta. Siisti yleisilme ja hyvin pidetyt pinnat mahdollistavat tilan käyttöönoton ilman suuria remonttitarpeita.
Sijainti Puutarhakadulla tarjoaa hyvät kulkuyhteydet niin julkisilla kuin omalla autolla liikkuville, ja keskustan palvelut ovat käden ulottuvilla. Tämä tila sopii erinomaisesti yritykselle, joka arvostaa keskeistä sijaintia ja toimivaa työympäristöä.
Kysy lisätietoja ja sovi esittely!
Toimistossa on oma keittiö sekä wc-tilat, jotka tuovat arkeen sujuvuutta ja mukavuutta. Siisti yleisilme ja hyvin pidetyt pinnat mahdollistavat tilan käyttöönoton ilman suuria remonttitarpeita.
Sijainti Puutarhakadulla tarjoaa hyvät kulkuyhteydet niin julkisilla kuin omalla autolla liikkuville, ja keskustan palvelut ovat käden ulottuvilla. Tämä tila sopii erinomaisesti yritykselle, joka arvostaa keskeistä sijaintia ja toimivaa työympäristöä.
Kysy lisätietoja ja sovi esittely!
Kohteen tiedot
Pinta-ala:
265 m²
Hinta-arvio:
8 - 12 €/m²
(2 120 - 3 180 €/kk)
Kerros:
5
Tilan ominaisuudet:
- Heti vapaa
- Hissi
- Keittiö, oma
- Koneellinen ilmanvaihto
- Pukuhuone
- Sosiaalitila
- Tila muokattavissa
- WC, oma
Kiinteistön palvelut:
- Asiakaspysäköinti
- Ravintola
- Suihkutilat
Yhteyshenkilö:
Mikko Ranta
mikko.ranta@hausala.fi
050 360 6500
mikko.ranta@hausala.fi
050 360 6500
Mika Savikko
mika.savikko@hausala.fi
050 472 7077
mika.savikko@hausala.fi
050 472 7077
