Vuokrataan - Airamilan Kone
Loisteputki 4, 00750 Helsinki, Suutarila
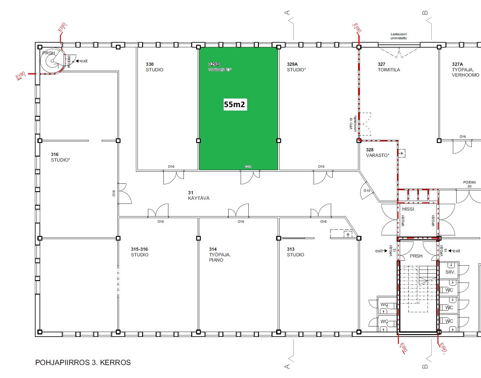
Vuokrattavana kolmannen kerroksen 55 m² työ-/liiketila. Tila on mahdollista remontoida tulevan asiakkaan tarpeiden mukaan. Tilassa ei ole vesipistettä eikä keittiötä, kiinteistöllä on yhteiskäyttöiset wc- tilat porraskäytävien vieressä.
Hyvä sijainti Kehä III:n lähellä, bussipysäkille on matkaa noin 300 m ja Puistolan juna-asemalle reilu kilometri.
Kysy lisätietoja ja sovitaan esittely!
Hyvä sijainti Kehä III:n lähellä, bussipysäkille on matkaa noin 300 m ja Puistolan juna-asemalle reilu kilometri.
Kysy lisätietoja ja sovitaan esittely!
Kohteen tiedot
Pinta-ala:
55 m²
Kerros:
3
Yhteyshenkilö:
Matti Pöyhiä
matti.poyhia@hausala.fi
040 722 6650
matti.poyhia@hausala.fi
040 722 6650
Mika Savikko
mika.savikko@hausala.fi
050 472 7077
mika.savikko@hausala.fi
050 472 7077
