Vuokrataan - Aviaforum 1
Robert Huberin tie 3b, 01510 Vantaa
Tarjolla siisti ja muunneltava toimistotila rakennuksen 3. kerroksessa suositussa Aviaforumin yrityskokonaisuudessa. Tila soveltuu erinomaisesti monenlaiseen toimistokäyttöön, ja sen pohjaratkaisu on muokattavissa yrityksesi tarpeiden mukaan.
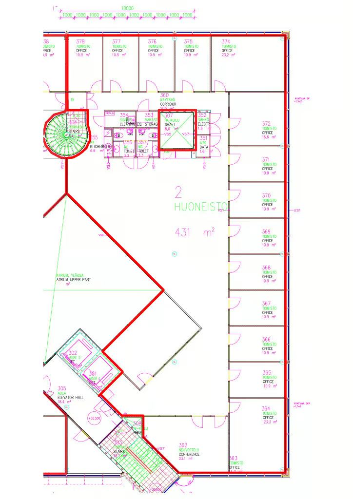
Tilaa on yhteensä 431m2, mikä mahdollistaa joustavat ratkaisut esimerkiksi tiimityötiloille, erillisille työhuoneille, neuvottelutiloille tai avoimelle toimistolle. Rakennuksessa on hissi, mikä tekee liikkumisesta vaivatonta henkilökunnalle ja vieraille.
Pysäköinti onnistuu kätevästi joko pihalla tai rakennuksen pohjakerroksessa sijaitsevassa pysäköintihallissa. Saatavilla on myös sähköautojen latauspaikkoja.
Tila sijaitsee osoitteessa Robert Huberin tie 3 B, 01510 Vantaa, hyvien liikenneyhteyksien varrella Aviapoliksen yritysalueella.
Tila on heti vapaa, joten muutto onnistuu nopeallakin aikataululla.
Sovi oma esittelyaikasi ja tule tutustumaan tilaan paikan päälle!
Tilaa on yhteensä 431m2, mikä mahdollistaa joustavat ratkaisut esimerkiksi tiimityötiloille, erillisille työhuoneille, neuvottelutiloille tai avoimelle toimistolle. Rakennuksessa on hissi, mikä tekee liikkumisesta vaivatonta henkilökunnalle ja vieraille.
Pysäköinti onnistuu kätevästi joko pihalla tai rakennuksen pohjakerroksessa sijaitsevassa pysäköintihallissa. Saatavilla on myös sähköautojen latauspaikkoja.
Tila sijaitsee osoitteessa Robert Huberin tie 3 B, 01510 Vantaa, hyvien liikenneyhteyksien varrella Aviapoliksen yritysalueella.
Tila on heti vapaa, joten muutto onnistuu nopeallakin aikataululla.
Sovi oma esittelyaikasi ja tule tutustumaan tilaan paikan päälle!
Kohteen tiedot
Pinta-ala:
431 m²
Hinta-arvio:
18 - 22 €/m²
(7 758 - 9 482 €/kk)
Kerros:
3
Jäähdytetty:
Kyllä
Tilan ominaisuudet:
- Heti vapaa
- Jäähdytetty
- Keittiö, oma
- Koneellinen ilmanvaihto
- Monitilatoimisto
- Näkyvällä paikalla
- Tila muokattavissa
- Valokuituyhteys
- WC, oma
Yhteyshenkilö:
Mikko Ranta
mikko.ranta@hausala.fi
050 360 6500
mikko.ranta@hausala.fi
050 360 6500
Matti Pöyhiä
matti.poyhia@hausala.fi
040 722 6650
matti.poyhia@hausala.fi
040 722 6650
