Vuokrataan - Urusvuorenkatu 3
Urusvuorenkatu 3, 20360 Turku, Urusvuori
Vapautumassa huhtikuussa vuokrattavaksi 5025 m² varasto- ja tuotantotilaa Turun Urusvuoresta.
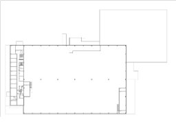
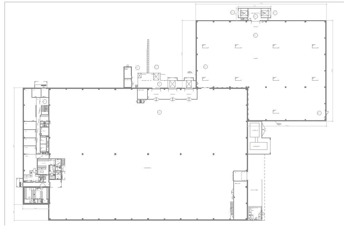
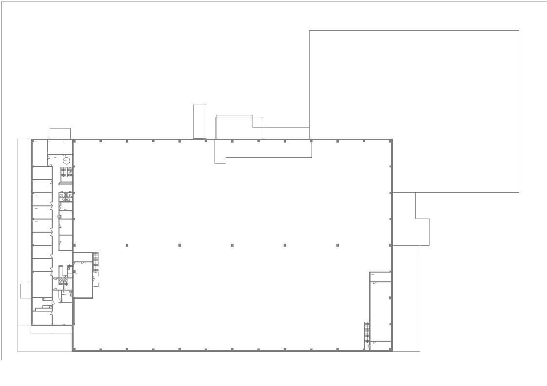
Toimitilassa on yhteensä neljä lastaustaskullista lastauslaituria, joista kaksi mahdollistavat purkamisen ja lastaamisen myös suoraan autosta toiseen. Tilojen vapaa korkeus korkeammassa hallissa on 8,2 m ja matalammassa osassa 4,5 m.
Toimitilassa on lisäksi toimistohuoneita ja tilan yläkertaan sijoittuvat sosiaalitilat sekä iso neuvotteluhuone.
Kohteessa on myös kylmäkatosta ja pihatilaa ulkovarastointiin.
Sijainti on erinomainen aivan Tampereen moottoritien ja Turun ohitustien vieressä. Kohteelle pääsee hyvin myös julkisilla kulkuvälineillä; kaupungin bussilinja 1 kulkee noin 50 metrin päästä.
Toimitilassa on yhteensä neljä lastaustaskullista lastauslaituria, joista kaksi mahdollistavat purkamisen ja lastaamisen myös suoraan autosta toiseen. Tilojen vapaa korkeus korkeammassa hallissa on 8,2 m ja matalammassa osassa 4,5 m.
Toimitilassa on lisäksi toimistohuoneita ja tilan yläkertaan sijoittuvat sosiaalitilat sekä iso neuvotteluhuone.
Kohteessa on myös kylmäkatosta ja pihatilaa ulkovarastointiin.
Sijainti on erinomainen aivan Tampereen moottoritien ja Turun ohitustien vieressä. Kohteelle pääsee hyvin myös julkisilla kulkuvälineillä; kaupungin bussilinja 1 kulkee noin 50 metrin päästä.
Kohteen tiedot
Pinta-ala:
5 025 m²
Hinta-arvio:
7 - 11 €/m²
(35 175 - 55 275 €/kk)
Kerros:
1-2
Tilan ominaisuudet:
- Huonetoimisto
- Keittiö, oma
- Nosto-ovi
- Sosiaalitila
- Tila muokattavissa
- Vapautumassa
- WC, oma
Kiinteistön palvelut:
- Asiakaspysäköinti
- Kokoustilat
- Lastauslaituri
Yhteyshenkilö:
Mikko Ranta
mikko.ranta@hausala.fi
050 360 6500
mikko.ranta@hausala.fi
050 360 6500
Mika Savikko
mika.savikko@hausala.fi
050 472 7077
mika.savikko@hausala.fi
050 472 7077
