Vuokrataan - Porkkalankatu 20
Porkkalankatu 20, 00180 Helsinki, Ruoholahti
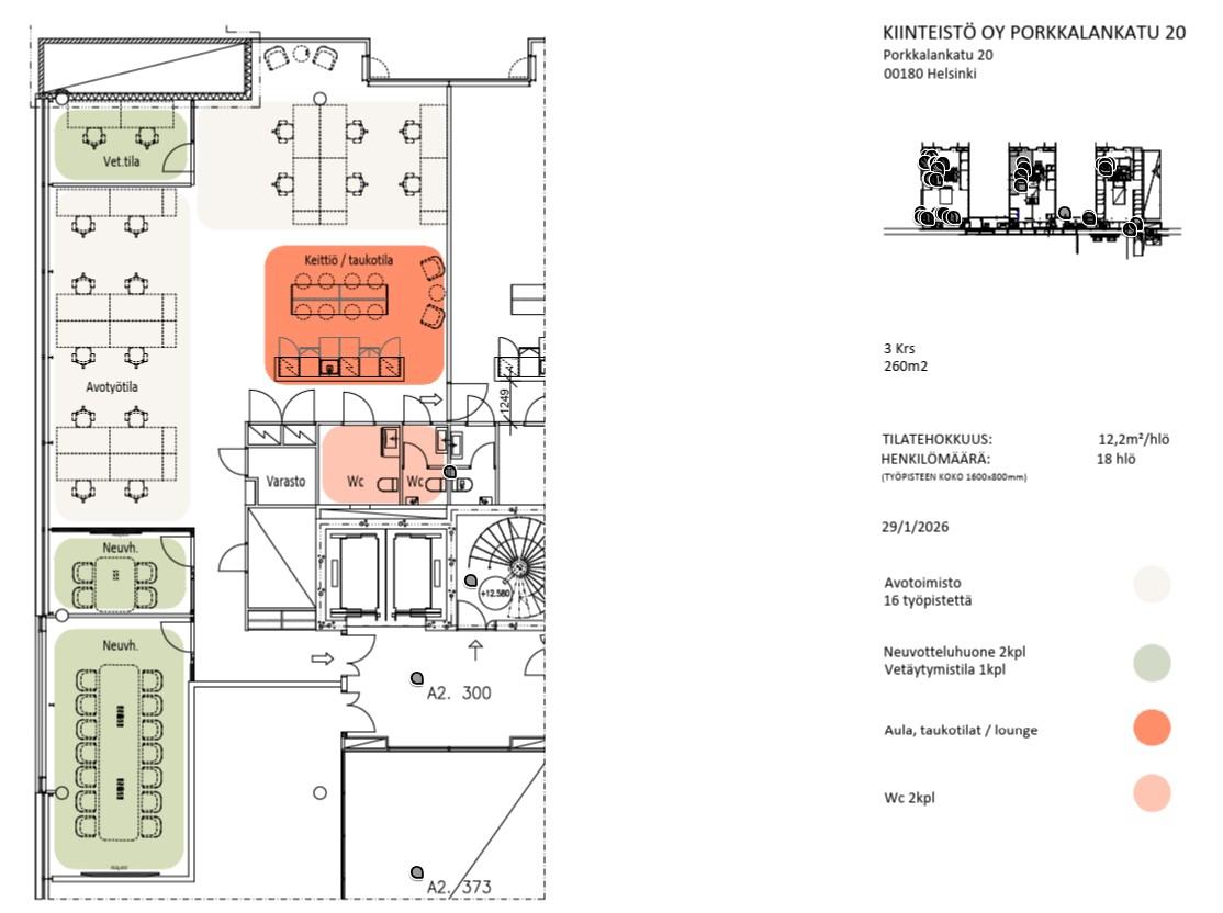
Vuokrataan Helsingin Ruoholahdesta kolmannen kerroksen muuttovalmis 260 m² toimistotila.
Porkkalankatu 20 tarjoaa yrityksellesi nykyaikaiset ja muuntojoustavat tilat, jotka soveltuvat erinomaisesti monenlaisiin tarpeisiin. Kiinteistö sijaitsee keskeisellä paikalla hyvien kulkuyhteyksien varrella, mikä tekee siitä helposti saavutettavan niin julkisilla kulkuvälineillä kuin omalla autolla.
Tilat ovat valoisia ja tehokkaasti suunniteltuja, ja kiinteistössä on kaikki tarvittavat palvelut sujuvaan arkeen. Läheltä löytyvät myös monipuoliset palvelut ja lounasvaihtoehdot, jotka tukevat työpäivän sujuvuutta.
Jos etsit toimistotilaa, joka tukee yrityksesi kasvua ja tarjoaa viihtyisän ympäristön, tämä kohde on erinomainen valinta.
Kysy rohkeasti lisätietoja ja sovitaan käynti kohteella jo tänään!
Porkkalankatu 20 tarjoaa yrityksellesi nykyaikaiset ja muuntojoustavat tilat, jotka soveltuvat erinomaisesti monenlaisiin tarpeisiin. Kiinteistö sijaitsee keskeisellä paikalla hyvien kulkuyhteyksien varrella, mikä tekee siitä helposti saavutettavan niin julkisilla kulkuvälineillä kuin omalla autolla.
Tilat ovat valoisia ja tehokkaasti suunniteltuja, ja kiinteistössä on kaikki tarvittavat palvelut sujuvaan arkeen. Läheltä löytyvät myös monipuoliset palvelut ja lounasvaihtoehdot, jotka tukevat työpäivän sujuvuutta.
Jos etsit toimistotilaa, joka tukee yrityksesi kasvua ja tarjoaa viihtyisän ympäristön, tämä kohde on erinomainen valinta.
Kysy rohkeasti lisätietoja ja sovitaan käynti kohteella jo tänään!
Kohteen tiedot
Ympäristösertifikaatti:
BREEAM
Pinta-ala:
260 m²
Hinta-arvio:
21 - 25 €/m²
(5 460 - 6 500 €/kk)
Kerros:
3
Jäähdytetty:
Kyllä
Tilan ominaisuudet:
- Avotoimisto
- Heti vapaa
- Hissi
- Jäähdytetty
- Keittiö, oma
- Koneellinen ilmanvaihto
- Monitilatoimisto
- Muuttovalmis
- Näkyvällä paikalla
- Sosiaalitila
- Valokuituyhteys
- Vesipiste
- WC, oma
Kiinteistön palvelut:
- Aulapalvelut
- Edustustila
- Kiinteistöpalvelut
- Kokoustilat
- Kuntosali
- Oleskelutila
- Pysäköintihalli
- Pyöräparkki
- Ravintola
- Sauna
- Siivouspalvelu
- Suihkutilat
- Turvapalvelut
Yhteyshenkilö:
Mika Savikko
mika.savikko@hausala.fi
050 472 7077
mika.savikko@hausala.fi
050 472 7077
Mikko Ranta
mikko.ranta@hausala.fi
050 360 6500
mikko.ranta@hausala.fi
050 360 6500
