Vuokrataan - Ruosilantie 14
Ruosilantie 14, 00390 Helsinki, Konala
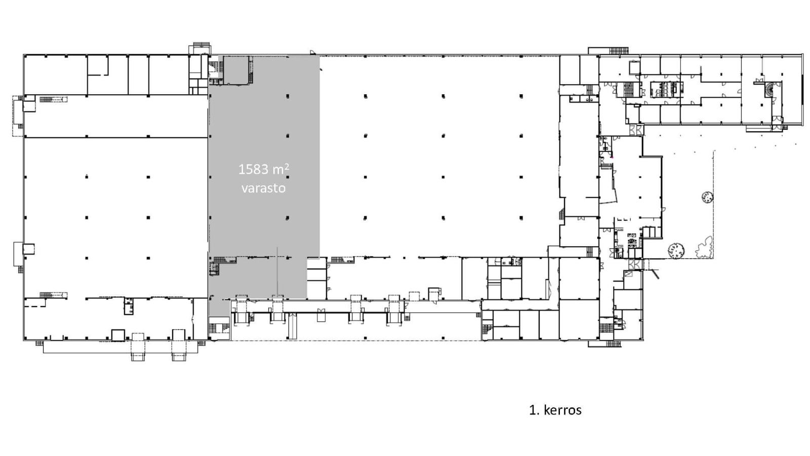
Vuokrattavana 2223 m² tilakokonaisuus sisältäen korkeaa varastoa 1583 m², siistiä parvivarastoa 422 m² sekä toimistoa 218 m². Korkea varasto (vapaa korkeus 6m) on selkeää tilaa, jossa on lastauslaituri ja nosto-ovi.
Kiinteistölle on asennettu aurinkopaneelit, jotka mahdollistavat uusiutuvan energian hyödyntämisen. Syksystä 2025 alkaen lämmitysmuotona on toiminut maalämpö, mikä tekee kiinteistöstä entistä energiatehokkaamman.
Kiinteistössä on oma lounasravintola, saunaosasto, sosiaalitilat ja laaja parkkialue. Kiinteistö sijaitsee Vihdintien välittömässä läheisyydessä ja on helposti saavutettavissa Kehä I:ltä. Hyvät bussiyhteydet ja Malminkartanon juna-asema sijaitsee 1,3 km päässä.
Kysy rohkeasti lisätietoja ja sovitaan käynti kohteella!
Kiinteistölle on asennettu aurinkopaneelit, jotka mahdollistavat uusiutuvan energian hyödyntämisen. Syksystä 2025 alkaen lämmitysmuotona on toiminut maalämpö, mikä tekee kiinteistöstä entistä energiatehokkaamman.
Kiinteistössä on oma lounasravintola, saunaosasto, sosiaalitilat ja laaja parkkialue. Kiinteistö sijaitsee Vihdintien välittömässä läheisyydessä ja on helposti saavutettavissa Kehä I:ltä. Hyvät bussiyhteydet ja Malminkartanon juna-asema sijaitsee 1,3 km päässä.
Kysy rohkeasti lisätietoja ja sovitaan käynti kohteella!
Kohteen tiedot
Ympäristösertifikaatti:
BREEAM
Pinta-ala:
2 223 m²
Hinta-arvio:
9 - 13 €/m²
(20 007 - 28 899 €/kk)
Kerros:
1-2
Tilan ominaisuudet:
- Avotoimisto
- Heti vapaa
- Huonetoimisto
- Keittiö, oma
- Koneellinen ilmanvaihto
- Muuttovalmis
- Nosto-ovi
- Oma sisäänkäynti
- Sosiaalitila
- Voimavirta
- WC, oma
Kiinteistön palvelut:
- Asiakaspysäköinti
- Lastauslaituri
- Ravintola
- Sauna
Yhteyshenkilö:
Mika Savikko
mika.savikko@hausala.fi
050 472 7077
mika.savikko@hausala.fi
050 472 7077
Mikko Ranta
mikko.ranta@hausala.fi
050 360 6500
mikko.ranta@hausala.fi
050 360 6500
