Vuokrataan - Hyttitie 8
Hyttitie 8, 00700 Helsinki
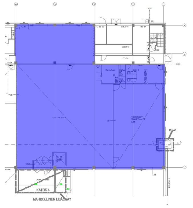
Kesällä 2026 vapautuu vuokrattavaksi katutason 632 m² toimitila, joka soveltuu hyvin myymäläksi, varasto-/tuotantotilaksi. Tilassa toimii tällä hetkellä siivousvälineliikkeen noutovarasto. Tilassa oma keittiö, pienet sos.tilat ja kaksi erillistä toimistohuonetta. Varastossa lastauslaituri.
Kohteelta on sujuvat yhteydet Kehä I:lle, Kehä III:lle ja Lahdenväylälle. Lähialueella on useita lounaspaikkoja.
Ota yhteyttä ja käydään tutustumassa tiloihin!
Kohteelta on sujuvat yhteydet Kehä I:lle, Kehä III:lle ja Lahdenväylälle. Lähialueella on useita lounaspaikkoja.
Ota yhteyttä ja käydään tutustumassa tiloihin!
Kohteen tiedot
Pinta-ala:
632 m²
Hinta-arvio:
12 - 16 €/m²
(7 584 - 10 112 €/kk)
Kerros:
Katutaso
Tilan ominaisuudet:
- Huonetoimisto
- Katutasossa
- Nosto-ovi
- Sosiaalitila
- Vapautumassa
- WC, oma
Kiinteistön palvelut:
- Lastauslaituri
Yhteyshenkilö:
Matti Pöyhiä
matti.poyhia@hausala.fi
040 722 6650
matti.poyhia@hausala.fi
040 722 6650
Mika Savikko
mika.savikko@hausala.fi
050 472 7077
mika.savikko@hausala.fi
050 472 7077
