Vuokrataan - Mänkimiehentie 4
Mänkimiehentie 4, 02780 Espoo, Kauklahti
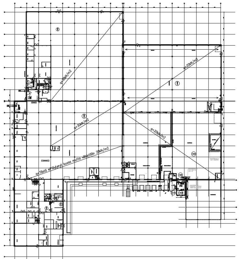
Vuokrattavana Kauklahdessa logistiikka-/varastorakennuksesta 8000 m² varastokokonaisuus, joka sisältää myös parvivarastoa. Varaston vapaa korkeus on n. 7 m. Käynti tilaan on lastauslaiturilta. Varastossa on sosiaali- ja wc-tilat ja mahdollisuus myös toimistoon. Kohteella on hyvä logistinen piha-alue.
Kohteelta on hyvät liikenneyhteydet Kehä III pitkin Turuntielle ja Länsiväylälle. Julkisten pysäkit ovat myös kätevästi kohteen lähellä.
Kysy rohkeasti lisätietoja ja sovitaan käynti kohteella!
Kohteelta on hyvät liikenneyhteydet Kehä III pitkin Turuntielle ja Länsiväylälle. Julkisten pysäkit ovat myös kätevästi kohteen lähellä.
Kysy rohkeasti lisätietoja ja sovitaan käynti kohteella!
Kohteen tiedot
Pinta-ala:
8 000 m²
Hinta-arvio:
8 - 12 €/m²
(64 000 - 96 000 €/kk)
Kerros:
1-2
Tilan ominaisuudet:
- Sosiaalitila
- Tila muokattavissa
- Vapautumassa
- WC, oma
Kiinteistön palvelut:
- Asiakaspysäköinti
- Lastauslaituri
- Piha
Yhteyshenkilö:
Mikko Ranta
mikko.ranta@hausala.fi
050 360 6500
mikko.ranta@hausala.fi
050 360 6500
Mika Savikko
mika.savikko@hausala.fi
050 472 7077
mika.savikko@hausala.fi
050 472 7077
