Vuokrataan - Tikkurilan Silkkitehtaan kortteli
Silkkitehtaantie 5, 01300 Vantaa, Tikkurila
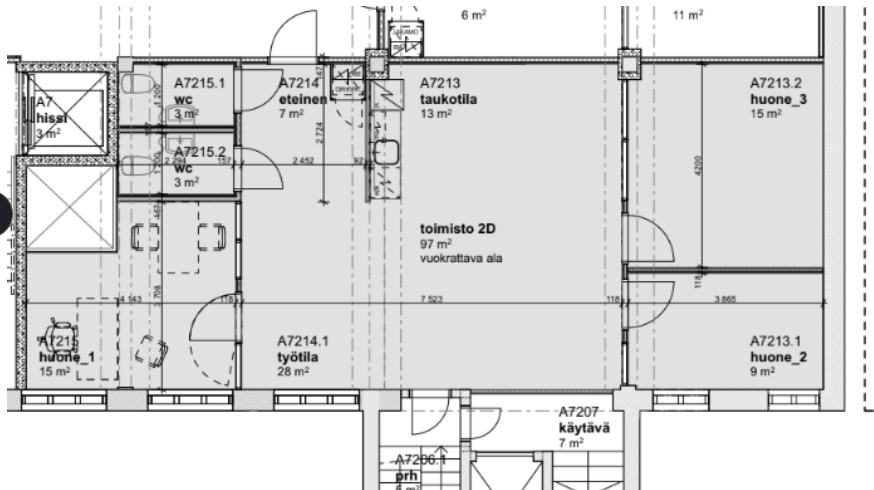
Vuokrattavana Tikkurilan Silkistä toisen kerroksen 97 m² toimistotila.
Muuttovalmis tila, jossa on työ-/neuvotteluhuonetta, avotilaa sekä oma keittiö ja wc:t.
Keskeisen sijaintinsa ansiosta kiinteistöön on helppo saapua ja kaikki Tikkurilan palvelut ovat lähettyvillä. Kehä III kulkee lähellä ja Tikkurilan rautatieasema on kävelymatkan päässä.
Kiinteistön palveluina mm. neuvotteluhuoneita, pyöräparkki, suihku- ja pukuhuonetilat sekä parkkipaikkoja pihalla, että parkkihallissa. Lounasravintoloita on useita lähistöllä.
Kysy rohkeasti lisätietoja ja sovitaan käynti kohteella!
Muuttovalmis tila, jossa on työ-/neuvotteluhuonetta, avotilaa sekä oma keittiö ja wc:t.
Keskeisen sijaintinsa ansiosta kiinteistöön on helppo saapua ja kaikki Tikkurilan palvelut ovat lähettyvillä. Kehä III kulkee lähellä ja Tikkurilan rautatieasema on kävelymatkan päässä.
Kiinteistön palveluina mm. neuvotteluhuoneita, pyöräparkki, suihku- ja pukuhuonetilat sekä parkkipaikkoja pihalla, että parkkihallissa. Lounasravintoloita on useita lähistöllä.
Kysy rohkeasti lisätietoja ja sovitaan käynti kohteella!
Kohteen tiedot
Pinta-ala:
97 m²
Hinta-arvio:
24 - 28 €/m²
(2 328 - 2 716 €/kk)
Kerros:
2
Tilan ominaisuudet:
- Heti vapaa
- Hybriditoimisto
- Keittiö, oma
- Muuttovalmis
- WC, oma
Kiinteistön palvelut:
- Asiakaspysäköinti
Yhteyshenkilö:
Matti Pöyhiä
matti.poyhia@hausala.fi
040 722 6650
matti.poyhia@hausala.fi
040 722 6650
Mikko Ranta
mikko.ranta@hausala.fi
050 360 6500
mikko.ranta@hausala.fi
050 360 6500
