Vuokrataan - PMK Talo
Erkkilänkatu 11, 33100 Tampere, Tammela
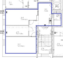
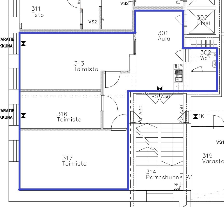
Vuokrataan kolmannen kerroksen siisti ja remontoitu 91 m² toimistotila PMK- talosta, Tammelasta. Tämä tila koostuu kolmesta toimistohuoneesta sekä aula-/ keittiötilasta. Tähän tilaan on oma hissiyhteys! Tila vapautuu sopimuksen mukaan.
PMK- talo sijaitsee Tampereen ytimessä, Tammelan alueella. Kyseessä on historiallisesti arvokas kiinteistö, joka kantaa mukanaan Tampereen tekstiiliteollisuuden perinteitä. PMK- taloa on kehitetty ja modernisoitu huimasti vuosien varrella. Tiloja on tarjolla moniin eri käyttötarkoituksiin sekä yrityksille, että organisaatioille. Kiinteistö hurmaa kävijät välittömästi vaikuttavalla arkkitehtuurillaan ja historiallisella tunnelmallaan.
Kohteen sijainti on loistavalla paikalla kävelymatkan päässä keskustasta. Lisäksi läheltä löytyy paljon erilaisia palveluita ja lounasravintoloita, jotka tukevat olennaisesti yrityksesi tai organisaatiosi toimintaa.
Kiinteistön edessä on lukittava pyöräkatos, sekä kellarissa lukittava pyörävarasto. Lisäksi PMK-talossa toimii tällä hetkellä monipuolinen Fressi-liikuntakeskus, jolla voitte lisätä yrityksenne työntekijöiden hyvinvointia!
PMK- talolla on Europarkin hallinnoima pysäköintialue, josta mahdollista vuokrata autopaikkoja. Tampereen julkinen liikenne tarjoaa erinomaiset kulkuyhteydet kiinteistölle. Rautatie-asema on vain alle kilometrin päässä.
Kysy rohkeasti lisätietoja ja varaa esittelyaikasi jo tänään!
PMK- talo sijaitsee Tampereen ytimessä, Tammelan alueella. Kyseessä on historiallisesti arvokas kiinteistö, joka kantaa mukanaan Tampereen tekstiiliteollisuuden perinteitä. PMK- taloa on kehitetty ja modernisoitu huimasti vuosien varrella. Tiloja on tarjolla moniin eri käyttötarkoituksiin sekä yrityksille, että organisaatioille. Kiinteistö hurmaa kävijät välittömästi vaikuttavalla arkkitehtuurillaan ja historiallisella tunnelmallaan.
Kohteen sijainti on loistavalla paikalla kävelymatkan päässä keskustasta. Lisäksi läheltä löytyy paljon erilaisia palveluita ja lounasravintoloita, jotka tukevat olennaisesti yrityksesi tai organisaatiosi toimintaa.
Kiinteistön edessä on lukittava pyöräkatos, sekä kellarissa lukittava pyörävarasto. Lisäksi PMK-talossa toimii tällä hetkellä monipuolinen Fressi-liikuntakeskus, jolla voitte lisätä yrityksenne työntekijöiden hyvinvointia!
PMK- talolla on Europarkin hallinnoima pysäköintialue, josta mahdollista vuokrata autopaikkoja. Tampereen julkinen liikenne tarjoaa erinomaiset kulkuyhteydet kiinteistölle. Rautatie-asema on vain alle kilometrin päässä.
Kysy rohkeasti lisätietoja ja varaa esittelyaikasi jo tänään!
Kohteen tiedot
Ympäristösertifikaatti:
BREEAM
Pinta-ala:
91 m²
Rakennusvuosi:
1937
Kerros:
3
Tilan ominaisuudet:
- Hissi
- Huonetoimisto
- Keittiö, oma
- Koneellinen ilmanvaihto
- Muuttovalmis
- Näkyvällä paikalla
- Valokuituyhteys
- Vapautumassa
- Vesipiste
- WC, oma
Kiinteistön palvelut:
- Asiakaspysäköinti
- Edustustila
- Kiinteistöpalvelut
- Kokoustilat
- Kuntosali
- Piha
- Pysäköintihalli
- Pyöräparkki
- Siivouspalvelu
- Tavarahissi
- Turvapalvelut
Yhteyshenkilö:
Mika Savikko
mika.savikko@hausala.fi
050 472 7077
mika.savikko@hausala.fi
050 472 7077
Tero Ala-Hannula
tero.ala-hannula@hausala.fi
040 508 1351
tero.ala-hannula@hausala.fi
040 508 1351
