Vuokrataan - Merikortteli
Pursimiehenkatu 29-31, 00150 Helsinki, Punavuori
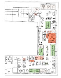
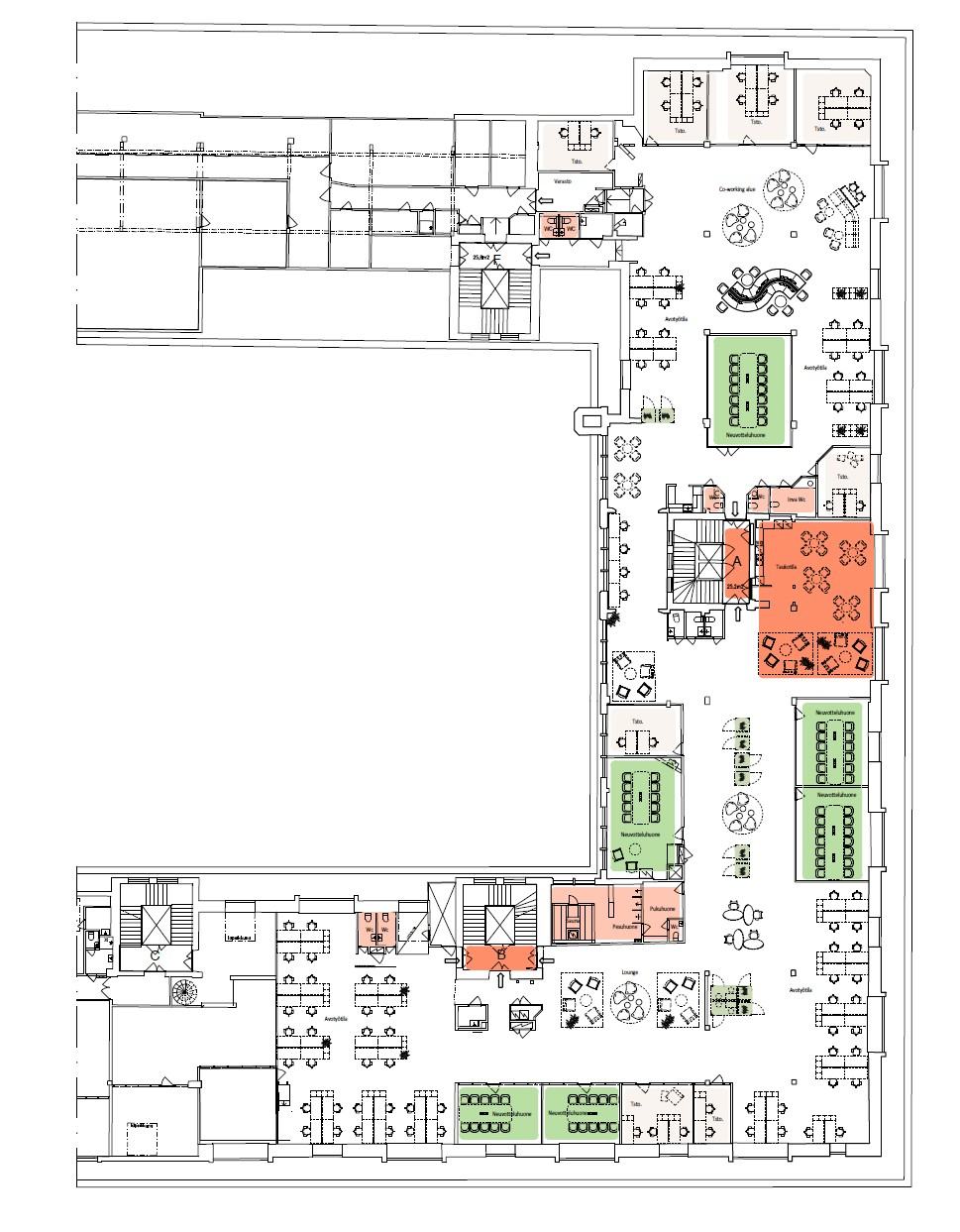
Vuokrataan Helsingin Punavuoresta kuudennen kerroksen 893 m² toimitilakokonaisuus. Tässä ainutlaatuisessa tilassa on useampia sisäänkäyntejä. Tila on tällä hetkellä betonipinnalla, joten pääset valitsemaan teitä miellyttävät pintamateriaalit! Tila on myös toiminut v. 2023 Helsinki Design Weekin päänäyttämönä. Huom. osa sisäkuvista on digitaalisesti käsiteltyjä.
Tunnelmallinen Merikortteli on ainutlaatuinen kiinteistö merellisen Punavuoren sydämessä.
Talossa toimii monipuolinen joukko yrityksiä kahvipaahtimoista mainostoimistoihin, jotka yhdessä muodostavat ainutlaatuisen ja eloisan työyhteisön. Merikorttelin palvelutarjontaan kuuluu italialaisesta pizzakulttuurista elävä Forzan ja leipomo-ravintola Levain. Korttelissa on myös tunnelmallinen elokuvateatteri Riviera. Viime vuosina valtavasti kehittyneellä Telakkakadulla sijaitsevasta Merikorttelista löytyy jo entuudestaan muun muassa kahvipaahtimo-kahvila Kaffa Roastery ja lounasravintola-kahvila Moko Market Café.
Merikortteli tarjoaa yrityksellesi nykyaikaiset ja muuntojoustavat tilat, jotka soveltuvat erinomaisesti monenlaisiin tarpeisiin. Kiinteistö sijaitsee keskeisellä paikalla hyvien kulkuyhteyksien varrella, mikä tekee siitä helposti saavutettavan niin julkisilla kulkuvälineillä kuin omalla autolla.
Jos etsit toimistotilaa, joka tukee yrityksesi kasvua ja tarjoaa viihtyisän ympäristön, tämä kohde on erinomainen valinta.
Kysy rohkeasti lisätietoja ja sovitaan käynti kohteella jo tänään!
Tunnelmallinen Merikortteli on ainutlaatuinen kiinteistö merellisen Punavuoren sydämessä.
Talossa toimii monipuolinen joukko yrityksiä kahvipaahtimoista mainostoimistoihin, jotka yhdessä muodostavat ainutlaatuisen ja eloisan työyhteisön. Merikorttelin palvelutarjontaan kuuluu italialaisesta pizzakulttuurista elävä Forzan ja leipomo-ravintola Levain. Korttelissa on myös tunnelmallinen elokuvateatteri Riviera. Viime vuosina valtavasti kehittyneellä Telakkakadulla sijaitsevasta Merikorttelista löytyy jo entuudestaan muun muassa kahvipaahtimo-kahvila Kaffa Roastery ja lounasravintola-kahvila Moko Market Café.
Merikortteli tarjoaa yrityksellesi nykyaikaiset ja muuntojoustavat tilat, jotka soveltuvat erinomaisesti monenlaisiin tarpeisiin. Kiinteistö sijaitsee keskeisellä paikalla hyvien kulkuyhteyksien varrella, mikä tekee siitä helposti saavutettavan niin julkisilla kulkuvälineillä kuin omalla autolla.
Jos etsit toimistotilaa, joka tukee yrityksesi kasvua ja tarjoaa viihtyisän ympäristön, tämä kohde on erinomainen valinta.
Kysy rohkeasti lisätietoja ja sovitaan käynti kohteella jo tänään!
Kohteen tiedot
Ympäristösertifikaatti:
BREEAM
Pinta-ala:
893 m²
Hinta-arvio:
23 - 27 €/m²
(20 539 - 24 111 €/kk)
Kerros:
6
Tilan ominaisuudet:
- Heti vapaa
- Hissi
- Monitilatoimisto
- Näkyvällä paikalla
- Tila muokattavissa
- Tila remontoidaan
- Ylinkerros
Kiinteistön palvelut:
- Asiakaspysäköinti
- Kiinteistöpalvelut
- Kokoustilat
- Piha
- Pysäköintihalli
- Pyöräparkki
- Siivouspalvelu
- Tavarahissi
- Turvapalvelut
Yhteyshenkilö:
Mika Savikko
mika.savikko@hausala.fi
050 472 7077
mika.savikko@hausala.fi
050 472 7077
Mikko Ranta
mikko.ranta@hausala.fi
050 360 6500
mikko.ranta@hausala.fi
050 360 6500
