Vuokrataan - Derby Business Park - Spurtti
Tarvonsalmenkatu 17, 02600 Espoo, Perkkaa
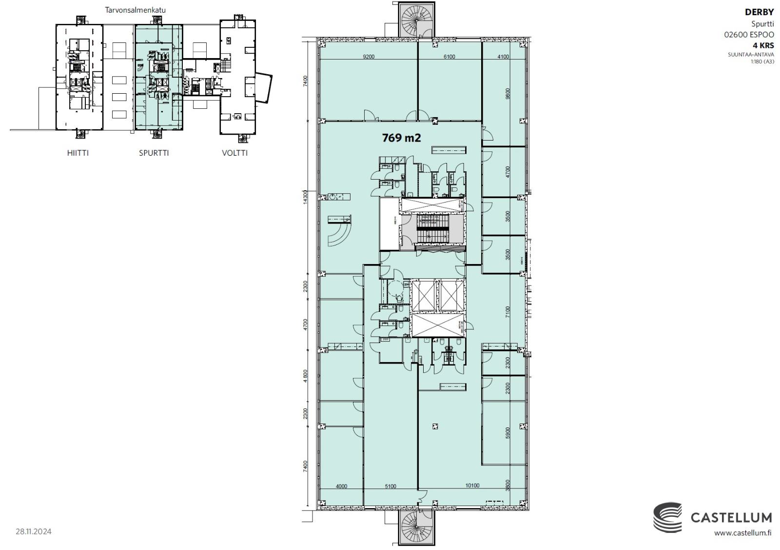
Vuokrataan neljännen kerroksen 769 m² toimistotila Derby Business Parkista Espoosta. Tämä tila on muuntelukelpoinen koko kerroksen toimistotila, josta on hienot näkymät aina merelle asti! Neljä sisäänkäyntiä mahdollistaa tilan jakamisen eri tarpeisiin
Derby Business Park tarjoaa joustavat toimistotilat luonnon helmassa, joissa päivänvalon runsaus sekä rauhoittavat merinäkymät tekevät työpäivistä entistäkin miellyttävämpiä.
Kävely- ja pyörätiet yhdistävät alueen puistot sekä liikunta- ja leikkipaikat Vermonniitty ympäristöineen tarjoaa täydelliset mahdollisuudet aktiiviseen työaikaan kävely- ja pyöräteiden yhdistäessä alueen puistot ja liikuntapaikat. Täällä pääset nauttimaan erinomaisista palveluista, kuten suositusta ravintolasta, sauna- ja kokoontumistiloista sekä autopesusta. Merellisestä miljööstä on hyvät yhteydet palveluiden äärelle.
Autolla on nopea saavutettavuus niin Kehä I:ltä, Turunväylältä kuin Helsingin keskustastakin.
KEHÄ III - 12 km / 11 min
TAPIOLA - 6.5 km / 12 min
LÄNSIVÄYLÄ - 7 km / 11 min
KAMPPI - 9 km / 19 min
LENTOKENTTÄ - 19 km / 19 min
Kysy lisätietoja tai sovitaan käynti kohteelle jo tänään!
Derby Business Park tarjoaa joustavat toimistotilat luonnon helmassa, joissa päivänvalon runsaus sekä rauhoittavat merinäkymät tekevät työpäivistä entistäkin miellyttävämpiä.
Kävely- ja pyörätiet yhdistävät alueen puistot sekä liikunta- ja leikkipaikat Vermonniitty ympäristöineen tarjoaa täydelliset mahdollisuudet aktiiviseen työaikaan kävely- ja pyöräteiden yhdistäessä alueen puistot ja liikuntapaikat. Täällä pääset nauttimaan erinomaisista palveluista, kuten suositusta ravintolasta, sauna- ja kokoontumistiloista sekä autopesusta. Merellisestä miljööstä on hyvät yhteydet palveluiden äärelle.
Autolla on nopea saavutettavuus niin Kehä I:ltä, Turunväylältä kuin Helsingin keskustastakin.
KEHÄ III - 12 km / 11 min
TAPIOLA - 6.5 km / 12 min
LÄNSIVÄYLÄ - 7 km / 11 min
KAMPPI - 9 km / 19 min
LENTOKENTTÄ - 19 km / 19 min
Kysy lisätietoja tai sovitaan käynti kohteelle jo tänään!
Kohteen tiedot
Pinta-ala:
769 m²
Kerros:
4
Yhteyshenkilö:
Mika Savikko
mika.savikko@hausala.fi
050 472 7077
mika.savikko@hausala.fi
050 472 7077
Mikko Ranta
mikko.ranta@hausala.fi
050 360 6500
mikko.ranta@hausala.fi
050 360 6500
