Vuokrataan - Lindströmin Talo
Lautatarhankatu 6, 00580 Helsinki, Kalasatama
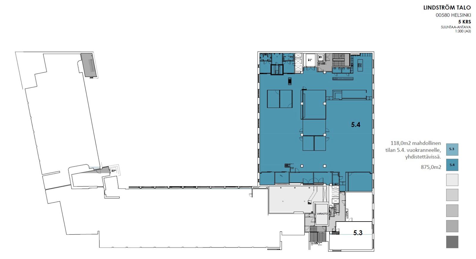
Vuokrataan ylimmän kerroksen jäähdytetty 875 m² toimistotila Kalasatamasta. Tämä on uniikki, korkeakattoinen ja avoin ullakkotila. Tilassa on kattoikkunoita, sisäparvi, uusittu iso keittiö, lounge, takka ja sauna sekä tavarahissi. Tästä tilasta saat todella persoonallisen tilan toimintaasi!
Lindström Talo on business parkiksi muutettu punatiilinen teollisuuskiinteistö Kalasataman ytimessä, jonka suuret ikkunat sekä avarat ja valoisat tilat luovat ainutlaatuisen tunnelman. Talossa on monipuoliset palvelut ja hyvä sijainti Kalasataman kehittyvällä alueella, metro ja REDI ovat kävelymatkan päässä.
Kiinteistön aula-, ravintola- ja neuvottelutilat on uudistettu syksyllä 2024. Uudistus tehtiin vastuullisesti hiilijalanjälkeä seuraten, materiaaleja kierrättäen, toiminnallisuutta korostaen sekä uutta luoden! Talon pitkä historia näkyy tyylikkäinä yksityiskohtina.
Lindström Taloon on helppo saapua niin julkisilla kulkuvälineillä kuin omalla autollakin. Talon palvelut on suunniteltu helpottamaan arkea: parkkitilaa pyörille ja autoille piisaa, maukasta lounasta on tarjolla joka päivä ja avuliaalla aulapalveluhenkilöstöllä on ratkaisu tilanteeseen kuin tilanteeseen. Jos kuitenkin kaipaa maisemanvaihtoa lounasaikaan, löytyy vierestä särmikäs Teurastamon alue sekä Suomen monipuolisin kaupunkikeskus Redi. Myös meri ja Mustikkamaan rannat ovat aivan kulman takana.
Kysy lisätietoja tai sovitaan käynti kohteelle jo tänään!
Lindström Talo on business parkiksi muutettu punatiilinen teollisuuskiinteistö Kalasataman ytimessä, jonka suuret ikkunat sekä avarat ja valoisat tilat luovat ainutlaatuisen tunnelman. Talossa on monipuoliset palvelut ja hyvä sijainti Kalasataman kehittyvällä alueella, metro ja REDI ovat kävelymatkan päässä.
Kiinteistön aula-, ravintola- ja neuvottelutilat on uudistettu syksyllä 2024. Uudistus tehtiin vastuullisesti hiilijalanjälkeä seuraten, materiaaleja kierrättäen, toiminnallisuutta korostaen sekä uutta luoden! Talon pitkä historia näkyy tyylikkäinä yksityiskohtina.
Lindström Taloon on helppo saapua niin julkisilla kulkuvälineillä kuin omalla autollakin. Talon palvelut on suunniteltu helpottamaan arkea: parkkitilaa pyörille ja autoille piisaa, maukasta lounasta on tarjolla joka päivä ja avuliaalla aulapalveluhenkilöstöllä on ratkaisu tilanteeseen kuin tilanteeseen. Jos kuitenkin kaipaa maisemanvaihtoa lounasaikaan, löytyy vierestä särmikäs Teurastamon alue sekä Suomen monipuolisin kaupunkikeskus Redi. Myös meri ja Mustikkamaan rannat ovat aivan kulman takana.
Kysy lisätietoja tai sovitaan käynti kohteelle jo tänään!
Kohteen tiedot
Ympäristösertifikaatti:
BREEAM
Pinta-ala:
875 m²
Hinta-arvio:
21 - 25 €/m²
(18 375 - 21 875 €/kk)
Kerros:
5
Jäähdytetty:
Kyllä
Tilan ominaisuudet:
- Heti vapaa
- Jäähdytetty
- Keittiö, oma
- Koneellinen ilmanvaihto
- Monitilatoimisto
- Muuttovalmis
- Näkyvällä paikalla
- Tila muokattavissa
- Vesipiste
- WC, oma
- Ylinkerros
Kiinteistön palvelut:
- Aulapalvelut
- Edustustila
- Kiinteistöpalvelut
- Kokoustilat
- Postipalvelu
- Pysäköintihalli
- Pyöräparkki
- Ravintola
- Siivouspalvelu
- Turvapalvelut
Yhteyshenkilö:
Mika Savikko
mika.savikko@hausala.fi
050 472 7077
mika.savikko@hausala.fi
050 472 7077
Mikko Ranta
mikko.ranta@hausala.fi
050 360 6500
mikko.ranta@hausala.fi
050 360 6500
