Vuokrataan - Helsingin Hämeentie 15 A
Hämeentie 15 A, 00500 Helsinki, Sörnäinen
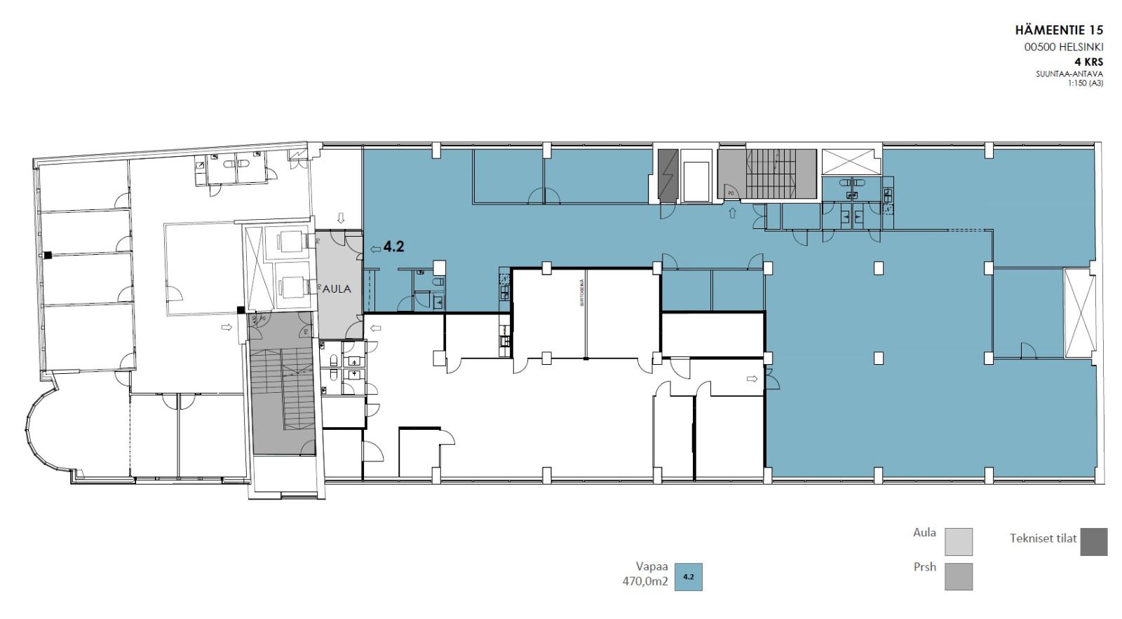
Vuokrataan neljännen kerroksen jäähdytetty 470 m² toimistotila Sörnäisista. Tila on monitilatoimisto, jossa on useita eri kokoisia huoneita.
Hämeentie 15 on vuonna 1956 rakennettu kiinteistö, jota on sittemmin 1990-luvulla laajennettu. Historiallisesti kiinnostava rakennus sijaitsee Helsingin keskustan pohjoispuolella Sörnäisissä, jossa kysyntä näkyvillä paikoilla sijaitsevista ja hyvien liikenneyhteyksien varrella olevia toimitiloja kohtaan on korkea. Viime vuosina Helsingin kaupunki on toteuttanut mittavia uudistuksia Hämeentiellä parantaakseen julkisen ja kevyen liikenteen yhteyksiä ja samalla koko alueen houkuttelevuutta. Kehittyvällä Sörnäinen-Kalasatama-Vallila-alueella on kysyntää sekä moderneille, tehokkaille ja persoonallisille toimistotiloille.
Talossa on uniikkeja yksityiskohtia, kuten kaareva kulma ja ylemmissä kerroksissa iso kattoterassi. Talon asiakkaiden käytössä ovat myös Castellumin lähialueella sijaitsevien Business Parkien ravintola- ja neuvottelutilapalvelut Rantatie Business Parkissa, Lindström Talossa ja Kalasataman Kummelissa.
Kysy lisätietoja tai sovitaan käynti kohteelle jo tänään!
Hämeentie 15 on vuonna 1956 rakennettu kiinteistö, jota on sittemmin 1990-luvulla laajennettu. Historiallisesti kiinnostava rakennus sijaitsee Helsingin keskustan pohjoispuolella Sörnäisissä, jossa kysyntä näkyvillä paikoilla sijaitsevista ja hyvien liikenneyhteyksien varrella olevia toimitiloja kohtaan on korkea. Viime vuosina Helsingin kaupunki on toteuttanut mittavia uudistuksia Hämeentiellä parantaakseen julkisen ja kevyen liikenteen yhteyksiä ja samalla koko alueen houkuttelevuutta. Kehittyvällä Sörnäinen-Kalasatama-Vallila-alueella on kysyntää sekä moderneille, tehokkaille ja persoonallisille toimistotiloille.
Talossa on uniikkeja yksityiskohtia, kuten kaareva kulma ja ylemmissä kerroksissa iso kattoterassi. Talon asiakkaiden käytössä ovat myös Castellumin lähialueella sijaitsevien Business Parkien ravintola- ja neuvottelutilapalvelut Rantatie Business Parkissa, Lindström Talossa ja Kalasataman Kummelissa.
Kysy lisätietoja tai sovitaan käynti kohteelle jo tänään!
Kohteen tiedot
Ympäristösertifikaatti:
BREEAM
Pinta-ala:
470 m²
Hinta-arvio:
21 - 25 €/m²
(9 870 - 11 750 €/kk)
Kerros:
4
Tilan ominaisuudet:
- Heti vapaa
- Keittiö, oma
- Monitilatoimisto
- Tila muokattavissa
- WC, oma
Kiinteistön palvelut:
- Keittiö
- Kiinteistöpalvelut
- Kuntosali
- Ravintola
- Siivouspalvelu
- Turvapalvelut
Yhteyshenkilö:
Mika Savikko
mika.savikko@hausala.fi
050 472 7077
mika.savikko@hausala.fi
050 472 7077
Mikko Ranta
mikko.ranta@hausala.fi
050 360 6500
mikko.ranta@hausala.fi
050 360 6500
