Vuokrataan - Martintalo
Jaakonkatu 2, 01620 Vantaa, Vantaankoski
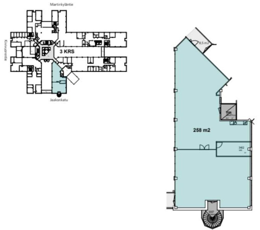
Vuokrataan kolmannen kerroksen jäähdytetty 258m² muuttovalmis toimistotila! Tila on tällä hetkellä pääosin avotilaa, mutta voidaan muokata asiakkaan toiveiden mukaan.
Martintalo sijaitsee Vantaankosken juna- aseman läheisyydessä, hyvien liikenneyhteyksien varrella. Kiinteistöstä löytyvät monipuoliset palvelut mm. lounasravintola, auditorio, vuokrattavia neuvottelutiloja, viihtyisät saunatilat sekä kuntosali. Kohteeseen on helppo saapua julkisilla sekä omalla autolla.
Kysy lisätietoja tai sovitaan käynti kohteelle jo tänään!
Martintalo sijaitsee Vantaankosken juna- aseman läheisyydessä, hyvien liikenneyhteyksien varrella. Kiinteistöstä löytyvät monipuoliset palvelut mm. lounasravintola, auditorio, vuokrattavia neuvottelutiloja, viihtyisät saunatilat sekä kuntosali. Kohteeseen on helppo saapua julkisilla sekä omalla autolla.
Kysy lisätietoja tai sovitaan käynti kohteelle jo tänään!
Kohteen tiedot
Ympäristösertifikaatti:
BREEAM
Pinta-ala:
258 m²
Hinta-arvio:
16 - 20 €/m²
(4 128 - 5 160 €/kk)
Rakennusvuosi:
1992
Kerros:
3
Jäähdytetty:
Kyllä
Tilan ominaisuudet:
- Avotoimisto
- Hissi
- Huonetoimisto
- Jäähdytetty
- Keittiö, oma
- Koneellinen ilmanvaihto
- Pukuhuone
- Tila muokattavissa
- Vapautumassa
- WC, oma
Kiinteistön palvelut:
- Asiakaspysäköinti
- Aulapalvelut
- Edustustila
- Keittiö
- Kiinteistöpalvelut
- Kokoustilat
- Kuntosali
- Oleskelutila
- Piha
- Pysäköintihalli
- Pyöräparkki
- Ravintola
- Sauna
- Siivouspalvelu
- Suihkutilat
- Turvapalvelut
Yhteyshenkilö:
Mika Savikko
mika.savikko@hausala.fi
050 472 7077
mika.savikko@hausala.fi
050 472 7077
Mikko Ranta
mikko.ranta@hausala.fi
050 360 6500
mikko.ranta@hausala.fi
050 360 6500
