Vuokrataan - Mikonkatu 2 - Pohjoisesplanadi 35
Pohjoisesplanadi 35, 00100 Helsinki, Kluuvi
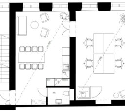
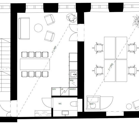
Vuokrataan Helsingin Kluuvista kolmannen kerroksen 67,5 m² toimistotila.
Arvokiinteistö Mikonkatu 2-Pohjoisesplanadi 35 Gaselli-korttelin eteläpäädyssä. Tämä kiinteistö sijaitsee Esplanadin puistokadun varrella. Vuonna 1888 valmistuneen arvokiinteistön saneeraustyöt on tehty historiaa ja arkkitehtuuria kunnioittaen. Nykyaikaiset jäähdytetyt ja valoisat toimistotilat luovat viihtyisän kokonaisuuden.
Julkisen liikenteen yhteydet löytyvät lyhyen kävelymatkan päästä. Autoilijoita palveleva pysäköintihalli sijaitsee P-Kluuvissa.
Kysy rohkeasti lisätietoja ja sovitaan käynti kohteella jo tänään!
Arvokiinteistö Mikonkatu 2-Pohjoisesplanadi 35 Gaselli-korttelin eteläpäädyssä. Tämä kiinteistö sijaitsee Esplanadin puistokadun varrella. Vuonna 1888 valmistuneen arvokiinteistön saneeraustyöt on tehty historiaa ja arkkitehtuuria kunnioittaen. Nykyaikaiset jäähdytetyt ja valoisat toimistotilat luovat viihtyisän kokonaisuuden.
Julkisen liikenteen yhteydet löytyvät lyhyen kävelymatkan päästä. Autoilijoita palveleva pysäköintihalli sijaitsee P-Kluuvissa.
Kysy rohkeasti lisätietoja ja sovitaan käynti kohteella jo tänään!
Kohteen tiedot
Pinta-ala:
68 m²
Hinta-arvio:
48 - 52 €/m²
(3 264 - 3 536 €/kk)
Rakennusvuosi:
1888
Kerros:
3
Jäähdytetty:
Kyllä
Tilan ominaisuudet:
- Heti vapaa
- Huonetoimisto
- Jäähdytetty
- Keittiö, oma
- Koneellinen ilmanvaihto
- WC, oma
Yhteyshenkilö:
Mikko Ranta
mikko.ranta@hausala.fi
050 360 6500
mikko.ranta@hausala.fi
050 360 6500
Mika Savikko
mika.savikko@hausala.fi
050 472 7077
mika.savikko@hausala.fi
050 472 7077
