Vuokrataan - Lampputie 1
Lampputie 1, 00740 Helsinki, Suutarila
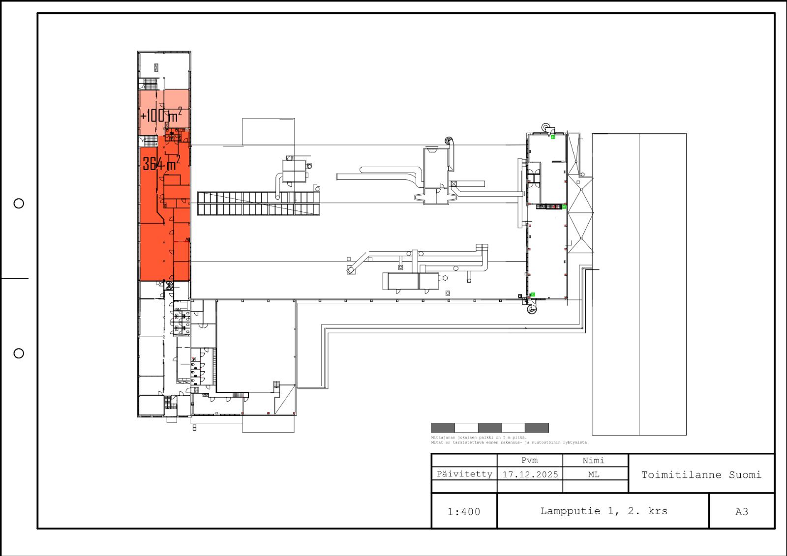
Vuokrataan Helsingin Suutarilasta 364 m² / 464 m² modernia toisen kerroksen toimistotilaa. Kellarikerroksesta voi vuokrata lisäksi erillisen saunallisen pukuhuonetilan.
Lampputie 1 kiinteistössä on monipuolisesti erilaista toimisto-, varasto- ja tuotantotilaa. Toimitilakiinteistö on rakennettu useassa eri osassa ja uusimmat osat ovat valmistuneet vuonna 2003. Kohteella on erinomainen saavutettavuus teiltä 3 ja 4, Kehä III -rampille noin 500 m. Kiinteistön tontilla on runsaasti pihatilaa ja paikoitustilaa. Kiinteistössä toimii lounasravintola. Bussipysäkit ja ruokakauppa lähellä.
Kysy rohkeasti lisätietoja ja sovitaan käynti kohteella!
Lampputie 1 kiinteistössä on monipuolisesti erilaista toimisto-, varasto- ja tuotantotilaa. Toimitilakiinteistö on rakennettu useassa eri osassa ja uusimmat osat ovat valmistuneet vuonna 2003. Kohteella on erinomainen saavutettavuus teiltä 3 ja 4, Kehä III -rampille noin 500 m. Kiinteistön tontilla on runsaasti pihatilaa ja paikoitustilaa. Kiinteistössä toimii lounasravintola. Bussipysäkit ja ruokakauppa lähellä.
Kysy rohkeasti lisätietoja ja sovitaan käynti kohteella!
Kohteen tiedot
Pinta-ala:
364 m² - 464 m²
Hinta-arvio:
10 - 14 €/m²
(3 640 - 6 496 €/kk)
Kerros:
2
Tilan ominaisuudet:
- Avotoimisto
- Heti vapaa
- Huonetoimisto
- Jaettavissa
- Keittiö, oma
- Muuttovalmis
- WC, oma
Kiinteistön palvelut:
- Asiakaspysäköinti
- Ravintola
Yhteyshenkilö:
Matti Pöyhiä
matti.poyhia@hausala.fi
040 722 6650
matti.poyhia@hausala.fi
040 722 6650
Mika Savikko
mika.savikko@hausala.fi
050 472 7077
mika.savikko@hausala.fi
050 472 7077
