Vuokrataan - Itälahdenkatu 23
Itälahdenkatu 23, 00210 Helsinki, Lauttasaari
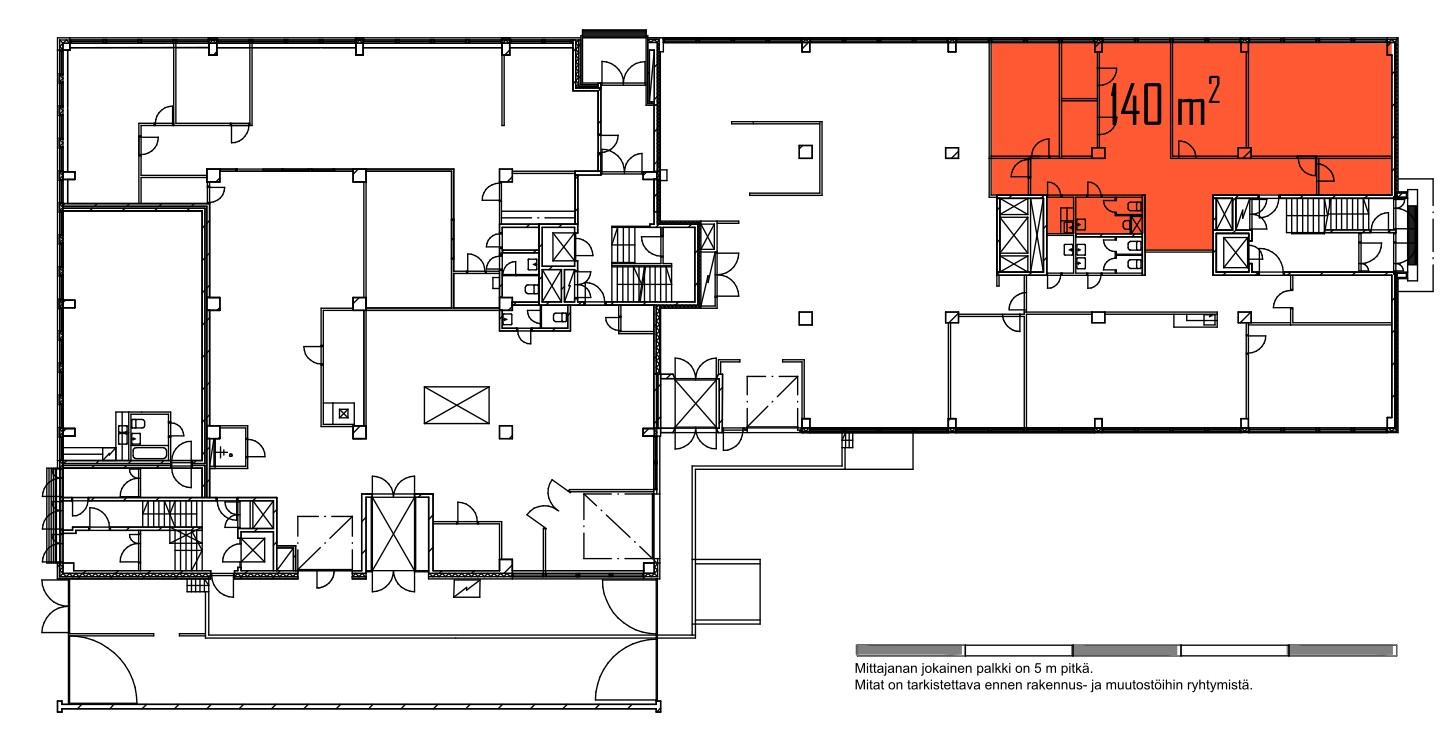
Vuokrataan Helsingin Lauttasaaresta ensimmäisen kerroksen 140 m² toimistotila.
Tila koostuu useasta työ-/neuvotteluhuoneesta, avoimesta tilasta ja keittokomerosta. Sisäänkäynti C-rappuun on Melkonkadun puolelta. Tila sijaitsee katutasossa lähellä pääsisäänkäyntiä.
Lähistöllä on useita lounasravintoloita. Kiinteistöllä on oma pysäköintialue.
Kysy rohkeasti lisätietoja ja sovitaan käynti kohteella jo tänään!
Tila koostuu useasta työ-/neuvotteluhuoneesta, avoimesta tilasta ja keittokomerosta. Sisäänkäynti C-rappuun on Melkonkadun puolelta. Tila sijaitsee katutasossa lähellä pääsisäänkäyntiä.
Lähistöllä on useita lounasravintoloita. Kiinteistöllä on oma pysäköintialue.
Kysy rohkeasti lisätietoja ja sovitaan käynti kohteella jo tänään!
Kohteen tiedot
Pinta-ala:
140 m²
Hinta-arvio:
9 - 13 €/m²
(1 260 - 1 820 €/kk)
Kerros:
1
Tilan ominaisuudet:
- Huonetoimisto
- Katutasossa
- Keittiö, oma
- Tila muokattavissa
- WC, oma
Yhteyshenkilö:
Mikko Ranta
mikko.ranta@hausala.fi
050 360 6500
mikko.ranta@hausala.fi
050 360 6500
Mika Savikko
mika.savikko@hausala.fi
050 472 7077
mika.savikko@hausala.fi
050 472 7077
