Vuokrataan - Airamilan Kone
Loisteputki 4, 00750 Helsinki, Suutarila
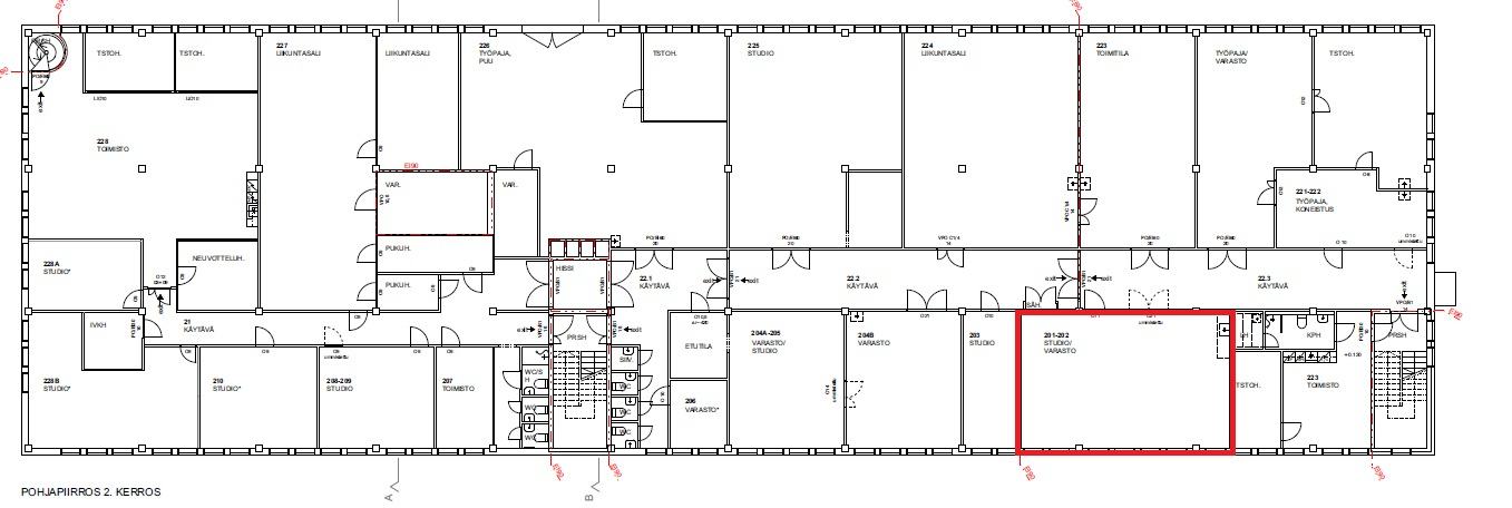
Vuokrataan toisen kerroksen valoisa 72 m² toimisto-/tuotantotila. Tilassa on pieni keittiöpiste. Kiinteistöllä on yhteiskäyttöiset wc-tilat porraskäytävien vieressä.
Hyvä sijainti Kehä III:n lähellä, bussipysäkille on matkaa noin 300 m ja Puistolan juna-asemalle reilu kilometri.
Kysy lisätietoja ja sovitaan esittely!
Hyvä sijainti Kehä III:n lähellä, bussipysäkille on matkaa noin 300 m ja Puistolan juna-asemalle reilu kilometri.
Kysy lisätietoja ja sovitaan esittely!
Kohteen tiedot
Pinta-ala:
72 m²
Kerros:
2
Yhteyshenkilö:
Matti Pöyhiä
matti.poyhia@hausala.fi
040 722 6650
matti.poyhia@hausala.fi
040 722 6650
Mika Savikko
mika.savikko@hausala.fi
050 472 7077
mika.savikko@hausala.fi
050 472 7077
