Vuokrataan - Itälahdenkatu 23
Itälahdenkatu 23, 00210 Helsinki, Lauttasaari
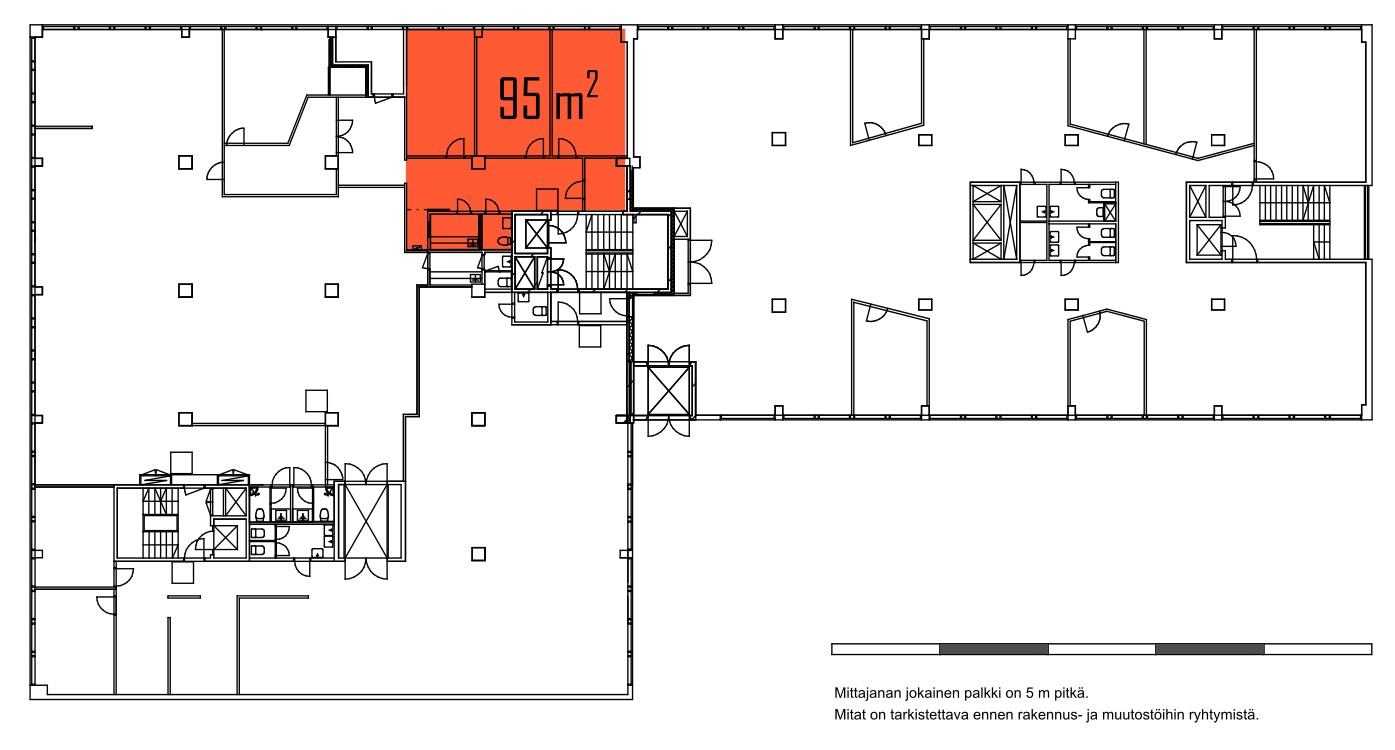
Vuokrataan Helsingin Lauttasaaresta toisen kerroksen 95 m² toimistotila. Tila käsittää kolme tilavaa työ-/neuvotteluhuonetta ja varastohuoneen. Keittokomero ja wc-tilat ovat yhteiskäyttöiset viereisen vuokralaisen kanssa.
Itälahdenkatu 23 tarjoaa yrityksellesi siistit tilat, jotka soveltuvat erinomaisesti monenlaisiin tarpeisiin. Kiinteistö sijaitsee keskeisellä paikalla hyvien kulkuyhteyksien varrella, mikä tekee siitä helposti saavutettavan niin julkisilla kulkuvälineillä kuin omalla autolla.
Läheltä löytyvät myös monipuoliset palvelut ja lounasvaihtoehdot, jotka tukevat työpäivän sujuvuutta.
Jos etsit toimitilaa, joka tukee yrityksesi kasvua ja tarjoaa viihtyisän ympäristön, tämä kohde on erinomainen valinta. Kysy rohkeasti lisätietoja ja sovitaan käynti kohteella jo tänään!
Itälahdenkatu 23 tarjoaa yrityksellesi siistit tilat, jotka soveltuvat erinomaisesti monenlaisiin tarpeisiin. Kiinteistö sijaitsee keskeisellä paikalla hyvien kulkuyhteyksien varrella, mikä tekee siitä helposti saavutettavan niin julkisilla kulkuvälineillä kuin omalla autolla.
Läheltä löytyvät myös monipuoliset palvelut ja lounasvaihtoehdot, jotka tukevat työpäivän sujuvuutta.
Jos etsit toimitilaa, joka tukee yrityksesi kasvua ja tarjoaa viihtyisän ympäristön, tämä kohde on erinomainen valinta. Kysy rohkeasti lisätietoja ja sovitaan käynti kohteella jo tänään!
Kohteen tiedot
Pinta-ala:
95 m²
Kerros:
2
Yhteyshenkilö:
Mikko Ranta
mikko.ranta@hausala.fi
050 360 6500
mikko.ranta@hausala.fi
050 360 6500
Mika Savikko
mika.savikko@hausala.fi
050 472 7077
mika.savikko@hausala.fi
050 472 7077
