Vuokrataan - Tikkurilan Kauppatalo
Peltolantie 2, 01300 Vantaa, Tikkurila
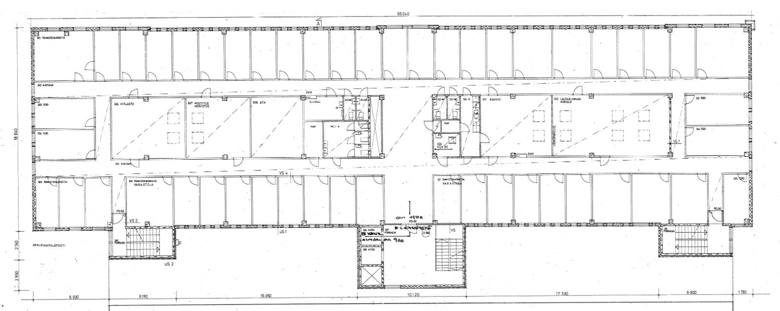
Vuokrataan koko kolmannen kerroksen kattava 1 151,5 m² toimistotila Tikkurilan Kauppatalosta. Tämä toimitila koostuu pääosin huonetoimistoista, joita on tilassa yli 40 kpl. Useita neuvottelutiloja sekä erillinen keittiö ja kahvittelutila.
Kiinteistön sijainti on hyvä. Tikkurilan rautatieasemalta on noin 10 min kävelymatka ja lähimmälle bussipysäkille ainoastaan noin 150 m. Kiinteistön edessä on parkkialue, joka tarjoaa pysäköintitilaa asiakkaille sekä työntekijöille.
Kysy lisätietoja tai sovitaan käynti kohteelle jo tänään!
Kiinteistön sijainti on hyvä. Tikkurilan rautatieasemalta on noin 10 min kävelymatka ja lähimmälle bussipysäkille ainoastaan noin 150 m. Kiinteistön edessä on parkkialue, joka tarjoaa pysäköintitilaa asiakkaille sekä työntekijöille.
Kysy lisätietoja tai sovitaan käynti kohteelle jo tänään!
Kohteen tiedot
Pinta-ala:
1 151 m²
Rakennusvuosi:
1989
Kerros:
3/3
Yhteyshenkilö:

Matti Pöyhiä
matti.poyhia@hausala.fi
040 722 6650
matti.poyhia@hausala.fi
040 722 6650

Mika Savikko
mika.savikko@hausala.fi
050 472 7077
mika.savikko@hausala.fi
050 472 7077