Vuokrataan - Valimo Park
Valimotie 16, 00380 Helsinki, Pitäjänmäki
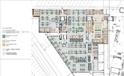
Vuokrataan Helsingin Pitäjänmäeltä ensimmäisen kerroksen 2 028 m² toimistotila.
Tilan huonekorkeus on poikkeuksellisen korkea n. 3,5 m ja ovat muuttovalmiissa kunnossa. Tilan erikoisuutena näyttävä oma lounge-alue.
Keskeisen sijaintinsa ansiosta kiinteistöön on helppo saapua ja kaikki Pitäjänmäen palvelut ovat lähettyvillä. Uusi pikaratikka kulkee aivan kiinteistön läheisyydessä, ja Valimon junapysäkille on vain lyhyt kävelymatka.
Kiinteistön palveluina mm. aulapalvelut, lounasravintola, kokoustilat sekä kuntosali. Autohallista on vuokrattavissa pysäköintipaikkoja ja sähköautojen latauskin onnistuu.
Kysy rohkeasti lisätietoja ja sovitaan käynti kohteella jo tänään!
Tilan huonekorkeus on poikkeuksellisen korkea n. 3,5 m ja ovat muuttovalmiissa kunnossa. Tilan erikoisuutena näyttävä oma lounge-alue.
Keskeisen sijaintinsa ansiosta kiinteistöön on helppo saapua ja kaikki Pitäjänmäen palvelut ovat lähettyvillä. Uusi pikaratikka kulkee aivan kiinteistön läheisyydessä, ja Valimon junapysäkille on vain lyhyt kävelymatka.
Kiinteistön palveluina mm. aulapalvelut, lounasravintola, kokoustilat sekä kuntosali. Autohallista on vuokrattavissa pysäköintipaikkoja ja sähköautojen latauskin onnistuu.
Kysy rohkeasti lisätietoja ja sovitaan käynti kohteella jo tänään!
Kohteen tiedot
Pinta-ala:
2 028 m²
Kerros:
1
Yhteyshenkilö:

Mika Savikko
mika.savikko@hausala.fi
050 472 7077
mika.savikko@hausala.fi
050 472 7077

Mikko Ranta
mikko.ranta@hausala.fi
050 360 6500
mikko.ranta@hausala.fi
050 360 6500