Vuokrataan - Ristipellontie 16
Ristipellontie 16, 00390 Helsinki, Konala
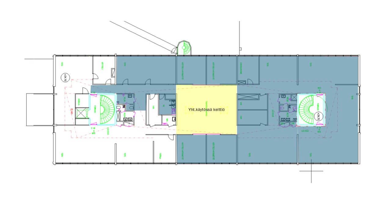
Vuokrataan valoisa ja erittäin siisti kolmannen kerroksen 560 m² toimistotila Helsingin Konalasta (sisäkuva on esimerkkitoimistosta samasta rakennuksesta). Tilassa nyt toimistohuoneita mutta mahdollista myös tehdä avokonttorityylisempää ratkaisua. Kohteessa on mukavuutta lisäävä ilmanvaihdon viilennys.
Kohde sijaitsee hyvällä paikalla Vihdintien läheisyydessä ja nopean yhteyden päässä myös Kehä I ja III:sta. Kiinteistön naapurissa sijaitsee kauppakeskus Ristikko, jossa on kattavat palvelut kuten mm. lounasravintoloita, kahviloita, K-Supermarket, pesula ja apteekki.
Lähimmät bussipysäkit Helsingin keskustaan sijaitsevat Vihdintiellä ja Malminkartanon juna- asemalle on matkaa noin 1,3 kilometriä.
Kysy rohkeasti lisätietoja ja sovitaan käynti kohteella jo tänään!
Kohde sijaitsee hyvällä paikalla Vihdintien läheisyydessä ja nopean yhteyden päässä myös Kehä I ja III:sta. Kiinteistön naapurissa sijaitsee kauppakeskus Ristikko, jossa on kattavat palvelut kuten mm. lounasravintoloita, kahviloita, K-Supermarket, pesula ja apteekki.
Lähimmät bussipysäkit Helsingin keskustaan sijaitsevat Vihdintiellä ja Malminkartanon juna- asemalle on matkaa noin 1,3 kilometriä.
Kysy rohkeasti lisätietoja ja sovitaan käynti kohteella jo tänään!
Kohteen tiedot
Pinta-ala:
560 m²
Rakennusvuosi:
1974
Kerros:
3
Yhteyshenkilö:

Mika Savikko
mika.savikko@hausala.fi
050 472 7077
mika.savikko@hausala.fi
050 472 7077

Mikko Ranta
mikko.ranta@hausala.fi
050 360 6500
mikko.ranta@hausala.fi
050 360 6500