Vuokrataan - Eurocity
Joukahaisenkatu 1, 20520 Turku, Kupittaa
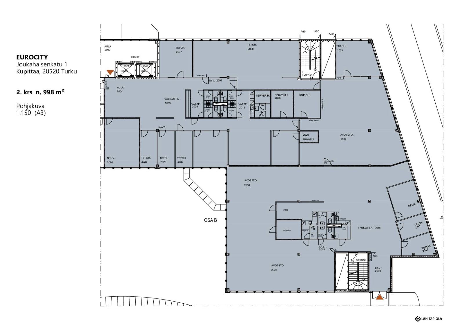
Vuokrataan Turun Kupittaalta toisen kerroksen 998 m² toimistotila.
Toimistotila on monipuolista tilaa, joka on mahdollista räätälöidä yrityksesi tarpeiden mukaan. Toimisto on jäähdytetty ja kiinteistössä valokuituyhteydet.
Keskeisen sijaintinsa ansiosta kiinteistöön on helppo saapua ja kaikki Kupittaan palvelut ovat lähettyvillä. Bussit kulkevat aivan kiinteistön kupeessa, ja Kupittaan rautatieasemalle on vain lyhyt kävelymatka.
Kiinteistön palveluina mm. lounasravintola, kokoustilat, keskusaula/lounge sekä yhteinen info- ja palvelupiste naapurikiinteistön kanssa. Autohallista on vuokrattavissa pysäköintipaikkoja.
Kysy rohkeasti lisätietoja ja sovitaan käynti kohteella jo tänään!
Toimistotila on monipuolista tilaa, joka on mahdollista räätälöidä yrityksesi tarpeiden mukaan. Toimisto on jäähdytetty ja kiinteistössä valokuituyhteydet.
Keskeisen sijaintinsa ansiosta kiinteistöön on helppo saapua ja kaikki Kupittaan palvelut ovat lähettyvillä. Bussit kulkevat aivan kiinteistön kupeessa, ja Kupittaan rautatieasemalle on vain lyhyt kävelymatka.
Kiinteistön palveluina mm. lounasravintola, kokoustilat, keskusaula/lounge sekä yhteinen info- ja palvelupiste naapurikiinteistön kanssa. Autohallista on vuokrattavissa pysäköintipaikkoja.
Kysy rohkeasti lisätietoja ja sovitaan käynti kohteella jo tänään!
Kohteen tiedot
Pinta-ala:
998 m²
Rakennusvuosi:
1999
Kerros:
2/6
Yhteyshenkilö:

Mikko Ranta
mikko.ranta@hausala.fi
050 360 6500
mikko.ranta@hausala.fi
050 360 6500

Mika Savikko
mika.savikko@hausala.fi
050 472 7077
mika.savikko@hausala.fi
050 472 7077