Vuokrataan - Vuosaaren Rahtarinpuisto
Rahtarinkatu 5, 00980 Helsinki, Vuosaari
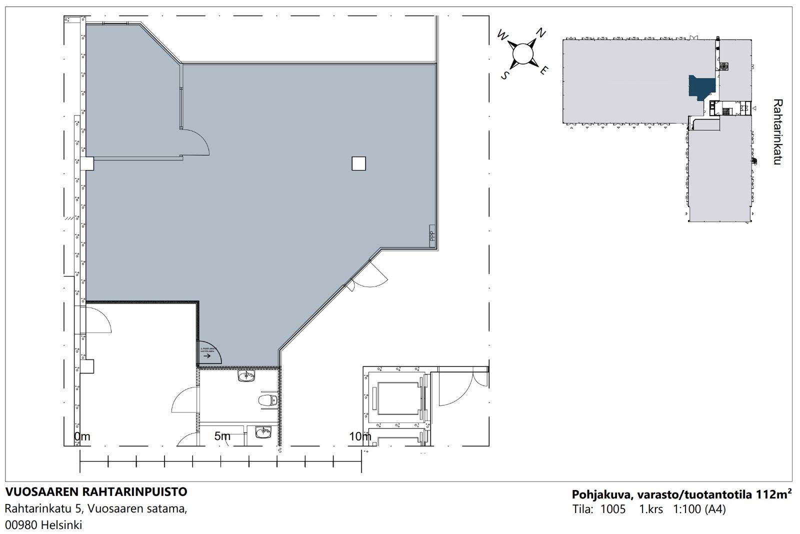
Vuokrataan Helsingin Vuosaaresta 112 m² varasto-/tuotantotila. Tila on siisti ja helposti kuljettavissa pumppukärryjen kanssa.
Kysy lisätietoja tai sovitaan käynti kohteelle jo tänään!
Kysy lisätietoja tai sovitaan käynti kohteelle jo tänään!
Kohteen tiedot
Pinta-ala:
112 m²
Rakennusvuosi:
2009
Kerros:
1/3
Yhteyshenkilö:

Mikko Ranta
mikko.ranta@hausala.fi
050 360 6500
mikko.ranta@hausala.fi
050 360 6500

Mika Savikko
mika.savikko@hausala.fi
050 472 7077
mika.savikko@hausala.fi
050 472 7077