Vuokrataan - Toinen Savu 8
Toinen Savu 8, 01510 Vantaa, Veromies
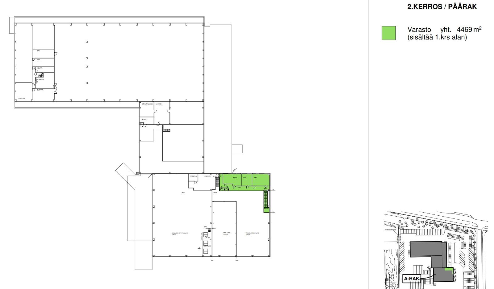
Vuokrataan Vantaan Veromiehestä 4 469 m² tuotanto-/korjaamo-/varikkotila, johon kuuluu asfaltoitu iso piha-alue. Tilan vapaa korkeus on n. 4 metriä ja kantavuus 2000 kg/m². Tilassa on 34 nosto-ovea ja lastauslaituri. Tilaan kuuluu korjaamotilan lisäksi toimisto-, tauko- ja sosiaalitiloja.
Kohde on loistavalla sijainnilla Kehä III:n ja lentokentän välittömässä läheisyydessä.
Kysy rohkeasti lisätietoja ja sovitaan käynti kohteella jo tänään!
Kohde on loistavalla sijainnilla Kehä III:n ja lentokentän välittömässä läheisyydessä.
Kysy rohkeasti lisätietoja ja sovitaan käynti kohteella jo tänään!
Kohteen tiedot
Pinta-ala:
4 469 m²
Kerros:
Katutaso
Yhteyshenkilö:

Matti Pöyhiä
matti.poyhia@hausala.fi
040 722 6650
matti.poyhia@hausala.fi
040 722 6650

Mika Savikko
mika.savikko@hausala.fi
050 472 7077
mika.savikko@hausala.fi
050 472 7077