Vuokrataan - Sarkatie 2
Sarkatie 2, 01720 Vantaa, Varisto
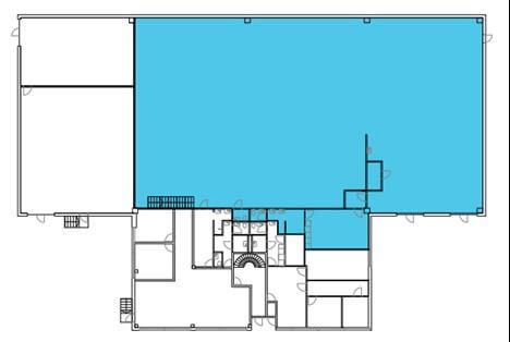
Vuokrataan n. 1 050 m² varasto-/toimistotila kokonaisuus. Tilat käsittää korkeaa varastohallia yhteensä n. 780 m² ja loput tilasta on toimistoa 1. krs n. 140 m² ja 2. krs n. 140 m². Varastossa on lastauslaituri sekä katutason nosto-ovi. Tilat ovat muunneltavissa.
Parkkitilaa on hyvin pihapiirissä. Kiinteistössä on sähköautojen latausmahdollisuus.
Kiinteistöltä on välitön yhteys Kehä III:lle. HKI- Vantaan lentoasemalle on noin 10 min ja Helsingin keskustaan noin 20 min ajomatka. Vihdintien ja Martinkyläntien bussipysäkeille on lyhyt kävelymatka.
Lähialueella on monipuoliset palvelut sekä lounasravintoloita. Supermarket sekä huoltoasema sijaitsevat kiinteistön läheisyydessä.
Kysy rohkeasti lisätietoja ja sovitaan käynti kohteella jo tänään!
Parkkitilaa on hyvin pihapiirissä. Kiinteistössä on sähköautojen latausmahdollisuus.
Kiinteistöltä on välitön yhteys Kehä III:lle. HKI- Vantaan lentoasemalle on noin 10 min ja Helsingin keskustaan noin 20 min ajomatka. Vihdintien ja Martinkyläntien bussipysäkeille on lyhyt kävelymatka.
Lähialueella on monipuoliset palvelut sekä lounasravintoloita. Supermarket sekä huoltoasema sijaitsevat kiinteistön läheisyydessä.
Kysy rohkeasti lisätietoja ja sovitaan käynti kohteella jo tänään!
Kohteen tiedot
Pinta-ala:
1 050 m²
Rakennusvuosi:
1981
Kerros:
1-2
Yhteyshenkilö:

Matti Pöyhiä
matti.poyhia@hausala.fi
040 722 6650
matti.poyhia@hausala.fi
040 722 6650

Mikko Ranta
mikko.ranta@hausala.fi
050 360 6500
mikko.ranta@hausala.fi
050 360 6500