Vuokrataan - Uudiskohde - Savelankatu 3
Savelankatu 3, 40700 Jyväskylä, Savela
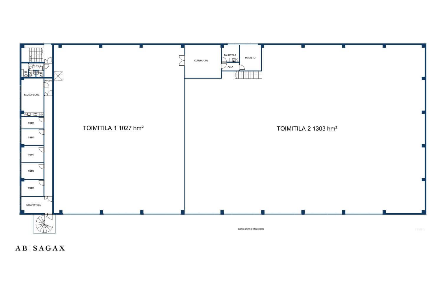
Vuokrataan Jyväskylän Savelasta 2 331 m² tuotanto-, varasto- ja toimistotila kokonaisuus uudiskohteesta, joka voidaan myös vuokrata pienemmissä yksiköissä. Toimii myös hyvin esim. myymälätilana.
Halleissa vapaa korkeus n. 8 m, nosto-ovet tiloihin ja lattian kantavuus 5000 kg/m².
Kysy rohkeasti lisätietoja ja sovitaan käynti kohteella jo tänään!
Halleissa vapaa korkeus n. 8 m, nosto-ovet tiloihin ja lattian kantavuus 5000 kg/m².
Kysy rohkeasti lisätietoja ja sovitaan käynti kohteella jo tänään!
Kohteen tiedot
Pinta-ala:
1 000 m² - 2 331 m²
Kerros:
1
Yhteyshenkilö:

Mikko Ranta
mikko.ranta@hausala.fi
050 360 6500
mikko.ranta@hausala.fi
050 360 6500

Mika Savikko
mika.savikko@hausala.fi
050 472 7077
mika.savikko@hausala.fi
050 472 7077