Vuokrataan - Kivääritehtaankatu 6
Kivääritehtaankatu 6, 40100 Jyväskylä, Tourula
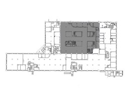
Vuokrataan Jyväskylän Tourulasta katutason 1 247 m² toimisto-/liiketila.
Toimisto koostuu avotilasta ja työ-/neuvotteluhuoneista, sekä kahdesta omasta sisääntulosta Kivääritehtaan kadulta. Tilaa voidaan muokata tarpeiden mukaisesti. Tila on ilmanvaihdolla jäähdytetty.
Keskeisen sijaintinsa ansiosta kiinteistöön on helppo saapua ja kaikki Tourulan palvelut ovat lähettyvillä. Autoille on hyvin tilaa pihassa. Rautatieasemalle on vain lyhyt kävelymatka.
Kysy rohkeasti lisätietoja ja sovitaan käynti kohteella jo tänään!
Toimisto koostuu avotilasta ja työ-/neuvotteluhuoneista, sekä kahdesta omasta sisääntulosta Kivääritehtaan kadulta. Tilaa voidaan muokata tarpeiden mukaisesti. Tila on ilmanvaihdolla jäähdytetty.
Keskeisen sijaintinsa ansiosta kiinteistöön on helppo saapua ja kaikki Tourulan palvelut ovat lähettyvillä. Autoille on hyvin tilaa pihassa. Rautatieasemalle on vain lyhyt kävelymatka.
Kysy rohkeasti lisätietoja ja sovitaan käynti kohteella jo tänään!
Kohteen tiedot
Pinta-ala:
1 247 m²
Kerros:
Katutaso
Yhteyshenkilö:

Mikko Ranta
mikko.ranta@hausala.fi
050 360 6500
mikko.ranta@hausala.fi
050 360 6500

Mika Savikko
mika.savikko@hausala.fi
050 472 7077
mika.savikko@hausala.fi
050 472 7077